Vivienda Eixample
Barcelona
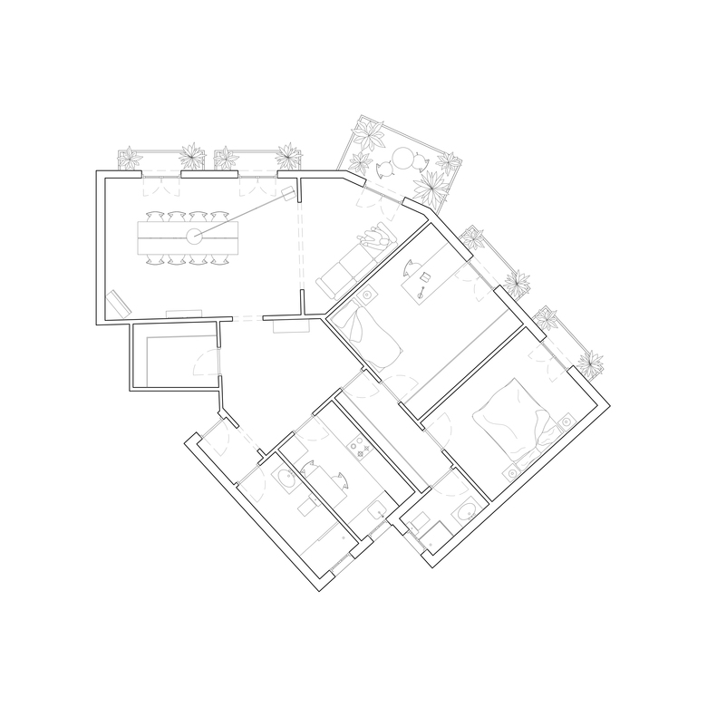
Rehabilitación de vivienda en un piso del Eixample. Se aporta un carácter distinto a cada espacio cambiando el color de las paredes. El diseño de la mesa contrasta lo nuevo y lo viejo, con una madera rota en su eje largo para poder pasar cables. Su proporción notablemente alargada permite darle a la mesa varios usos simultáneos y ser el elemento central del salón.
- Arquitectos
- sandy brunner Arquitectura
- Año
- 2013
- Cliente
- Private
- Equipo
- Sandy Brunner
Proyectos relacionados
Magazine
-
-
-
-
Un despatx madrileny signa un visionari catalitzador urbà en West Palm Beach
Andrea Pala | 29.11.2018 -
L'arquitectura de Francis Keré en escena en el Museu ICO de Madrid
Andrea Pala | 28.10.2018












