Rubin Museum of Art
New York, USA
“Whether this mysterious sanctuary hidden amid Pemako’s mist-shrouded mountains can ever be located geographically is of secondary importance to the journey itself. In the Buddhist tradition, the goal of pilgrimage is not so much to reach a particular destination as to awaken within oneself the qualities and energies of the sacred site, which ultimately lie within our own minds.”
― Ian Baker, The Heart of the World: A Journey to the Last Secret Place
Synesthesia | Himalayan Vista
Concept
Our design concept creates a dynamic and fluid immersive space that conveys sheer boundlessness. The integrated use of light and color (wavelength) and sound-based experiences (vibration), both of which can imperceptibly change (phase shift) throughout the course of museum hours, serves not only to elevate mindfulness, but also to imbue gallery-goers with a sense of wonderment and awe.
Form
The interior form is inspired by a three-dimensional topographic map that has been conceptually removed from the third floor gallery - creating a presence of absence. To enable a unique flowing geometry, we’ve clad the walls and ceilings with a framework of lightweight, computer-milled acoustical ribs which are made from a mix of sustainable and recycled materials and impregnated with sound-absorbing felt. Felt has a long and storied history in Central Asia, and the merging of the latest digital fabrication techniques with this most ancient of materials enables us to echo what the late French philosopher Gilles Deleuze deemed “the smooth and the striated.”
Function
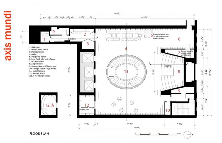
The design allows us to core the Main Gallery floor with a dramatic and spacious Amphitheater and Proscenium [7] (Region as Backdrop) suitable for both lectures and video presentations (rear wall = projection surface). The interior of the West Gallery [4] features a long, integrated bench that conceals a collection of oversized ottomans and yoga mats. There’s an adjacent ‘low-tech interactive space’ [4B], as well as a highly-functional Education Center [2] replete with prep counter, sink, adjustable shelves and two sides of hidden storage. We’ve also designed a new storage room for strollers [3], located near the elevators, and an additional storage room near the Amphitheater [5] for foldable chairs and tables. In lieu of another larger storage room [10] in the southeast corner, we’ve designed an elliptically-shaped meditation space struck with a curved bench and crowned by a colored egg-shaped skylight [10A].
Light + Color
The LED lighting can be easily controlled on a timer system, which, once programmed, will allow for an infinite spectrum of color combinations. As you’ll see illustrated in the renderings, the possibilities range from all white, slow gradient color fades, to striking rainbow-like effects.
In essence, the design creates an expansive numinous gateway; a space which is both functional and flexible. It will also allow many and varied opportunities to showcase stimulating artistic and educational experiences and ideas.
Video: https://vimeo.com/391340180
Concept + Design: John Beckmann, Principal of Axis Mundi Design
Design Team: John Beckmann, Kirill Lynkovsky, and Linda Jopen
©2020 Axis Mundi Design LLC
- Architects
- Axis Mundi
- Year
- 2020
- Client
- Rubin Museum of Art
- Team
- John Beckmann, Sara Kostic, Linda Jopen, Nicole Girdo
Related Projects
Magazine
-
-
-
-
Un despatx madrileny signa un visionari catalitzador urbà en West Palm Beach
Andrea Pala | 29.11.2018 -
L'arquitectura de Francis Keré en escena en el Museu ICO de Madrid
Andrea Pala | 28.10.2018










