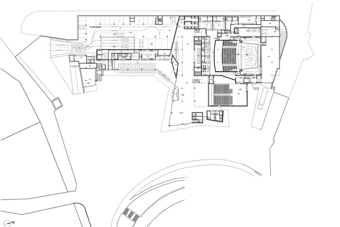
Convention Center Auditorium "El Sablón de Llanes"

Llanes

The Auditorium of the Sablon Llanes is a Convention Center with exhibition spaces and a Music School, but it is also a Cultural Center that combines the artistic and the business activity. The space consits of one theater and a free shaping hall. The layout of this cultural complex, that has terraces and other public spaces, it makes it an ideal choice for the confluence and encounter of people.

Architects
DFT arquitectes

Related Projects 

  • Homag Campus Schopfloch
    blocher partners
  • Penthouse FR
    MR Design Studio | Product and Interior design
  • Rodari Primary School
    C+S Architects
  • Rosenberghalde
    freiraumarchitektur gmbh | Luzern
  • Fusion
    SNOW ARCHITEKTUR

Magazine 

Other Projects by DFT arquitectes 

Pentitentiary "Puig de les Basses"
Figueres
"La Mediterrània" Primary School
Barcelona
"Can Manyer" Library
Vilassar de Dalt
Vilafranca del Penedès Auditorium
Vilafranca del Penedès
Bus Depot in "El Triangle Ferroviari"
Barcelona