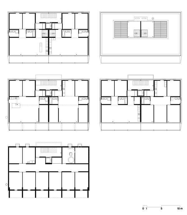
Neubau Wohnhaus Kirchstrasse

Im Kontext historischer Bauten behauptet sich das Wohnhaus an der Kirchstrasse selbstbewusst. Es setzt einen zeitgemässen Akzent in unmittelbarer Nähe zu Regierungsgebäude und geschichtsträchtigem Landenberg. Die klare Struktur lassen es selbstverständlich und zurückhaltend erscheinen.

Year
2004
Project Status
Built
Team
Roger Durrer, Hans Küchler
Fotografien
Roger Frei, Zürich; Walter Mair, Zürich

Other Projects by Beda Dillier 

Renovation Majorenhaus
Alpnachstad, Switzerland
Neubau Wohnhaus Sagengasse
Alpnach Dorf, Switzerland
Temporärer Theaterpavillon Visionsgedenkspiel «vo innä uisä»
Sachseln/Flüeli-Ranft
Ersatzbau Einfamilienhaus Alpnachstad
Alpnachstad
Umbau und Renovation Wohnhaus Cherweg
Sarnen, Switzerland