Fotografia © Stephan Zähring

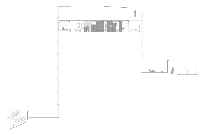
Refurbishment of a long narrow apartment in Vallvidrera's hill. In order to keep the eye on the panoramic view of Barcelona from any point in the apartment, all the existing walls are removed and the new furniture is placed along the corridor creating new stepped spaces.

Fotografia © Stephan Zähring
Fotografia © Stephan Zähring
Fotografia © Stephan Zähring
Fotografia © Stephan Zähring
Fotografia © Stephan Zähring
Fotografia © Stephan Zähring
Fotografia © sbA
Fotografia © sbA
Dibuix © sbA
Dibuix © sbA

Apartment Vallvidrera

 Torna enrere a la llista de projectes
Localització
Barcelona
Any
2006
Client
private
Equip
in collaboration with Bárbara Noguerol Diez + Estanislau Puig Durall Arquitectos

Altres projectes per sandy brunner Architecture 

Apartment Orient
Hospitalet de Llobregat
Office Isolutions
Barcelona
Apartment Ciutat Vella
Barcelona
Headquarter Gas Natural - Executive Zone
Barcelona
Loft Poblenou
Barcelona