Vilafranca del Penedès Auditorium
Vilafranca del Penedès
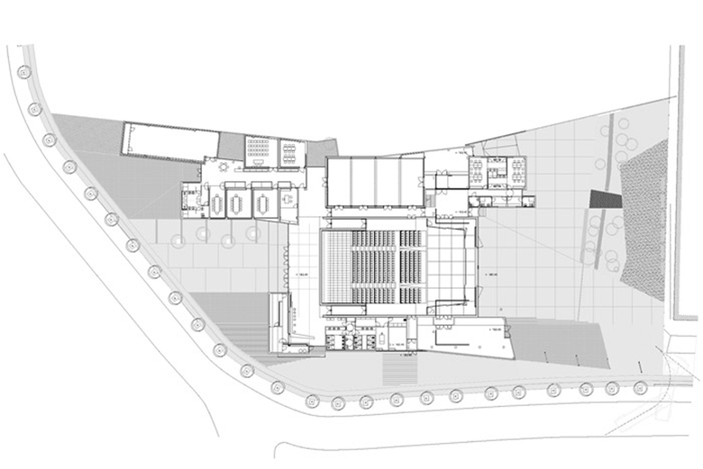
The specialization of a hall should not be incompatible with its versatility. We should organize different events such as concerts, theater plays, conferences, balls... but without denying or hiding its main function. This is the case of Vilafranca del Pendès Auditorium. With a 504 assistants capacity, and despite its specialization for the live music without amplifiers allows an extraordinary vitality due to its variety of configurations.
- 建筑师
- DFT arquitectes
- 年份
- 2008
相关项目
杂志
-
-
-
-
Un despatx madrileny signa un visionari catalitzador urbà en West Palm Beach
Andrea Pala | 29.11.2018 -
L'arquitectura de Francis Keré en escena en el Museu ICO de Madrid
Andrea Pala | 28.10.2018












