Opticum Forschungsbau

Pascalstraße 25, 30419 Hannover, 德国
Ansicht von Süden
可视化 © HENN

Im Wissenschaftspark Hannover-Marienwerder entsteht mit dem Opticum ein interdisziplinärer Forschungsbau für die Leibniz Universität Hannover. Hier arbeiten zukünftig Forschende und Lehrende aus Physik, Maschinenbau, Elek¬trotechnik, Mathematik, Informatik und Chemie gemeinsam an der Zukunft von optischen Technologien, wie sie in Smartphone-Kameras, Online-Streaming per optischer Glasfaser oder 3D-Abbildungen in der Medizin eingesetzt werden.

Die Forschung mit Laserstrahlen und hoch¬präzisen technischen Geräten erfordert eine robuste und sichere Umgebung. Neben dem Einsatz solider Materialien macht der Entwurf von HENN zu diesem Zweck die Topographie des Grundstücks dienstbar: Die Labore sind hauptsächlich im Erdgeschoss untergebracht, welches zum größten Teil ins Erdreich eines neu geschaffenen Hügels integriert und so natürlich geschützt ist.

In Richtung Osten öffnet sich das Gebäude zum Haupteingang. Von hier aus betreten Mitarbeitende, Studierende und Gäste das Opticum über ein großzügiges Foyer, das als Kommunika¬tionszentrum konzipiert ist – ein Begegnungsort für alle Menschen im Gebäude, welcher fachliche und soziale Interaktion fördert. Ein großflächiges Fenster erlaubt Gästen einen Einblick in die Halle für Versuchsaufbauten und damit in die laufende Forschung.

Im leicht zurückversetzten ersten Obergeschoss sind die öffentlichen Bereiche untergebracht. In den Konferenzräumen öffnet sich über eine großflächige Verglasung der Ausblick über die grüne Umgebung. In den oberen Geschossen befinden sich Büros für konzentriertes Arbeiten sowie weitere Laborflächen. Im Zentrum des Neubaus verbindet im zweiten Obergeschoss ein mit Bäumen und Sträuchern bepflanzter Innenhof alle Bürobereiche. Er bietet die Möglichkeit zum Arbeiten im Freien sowie zum informellen Austausch.

Das Gebäude ist so konzipiert und auf dem Grundstück platziert, dass es Raum für zukünftige Entwicklungen zulässt und modular erweitert werden kann. Die daraus entwickelte polygonale Form mit abgerundeten Gebäudeecken wird von einer effizienten Hülle aus Stahl, Glas und eloxiertem Aluminium umgeben. Der teils im Hügel verborgene Sockel öffnet sich mit einer mineralischen Fassade, die in fließenden Formen die ansteigende Topographie nachzeichnet. Ihre Oberfläche fügt sich mit warmen, changierenden Farbtönen in die natürliche Umgebung ein.

Im ersten und vierten Obergeschoss umrahmen dunkel gestaltete Fassadenbänder die rötlich-changierende Vorhangfassade in den dazwischenliegenden Geschossen, deren warme Farbigkeit mit der Sockelfassade korrespondiert. Die klare Struktur ergänzen versetzt angebrachte, vertikale Sonnen¬schutzlamellen, welche einen spielerischen Rhythmus erzeugen. Inspiriert von der fortwährenden Bewegung der Natur sind sie in unterschiedlichen Winkeln montiert. Auf den Dachflächen erzeugen Photovoltaikanlagen Strom für die energieintensive Forschung im Inneren.

Das Opticum schafft Raum für Innovation und Synergien in der hochspezialisierten interdisziplinären Forschung. Es wird zum wichtigen Baustein des internationalen Forschungsnetzwerks, welches die Schlüsseltechnologien für die digitale Welt von morgen weiterentwickelt.

Foyer 1. Obergeschoss
可视化 © HENN
Konzept
图纸 © HENN
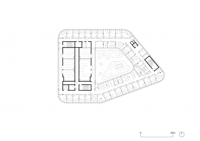
Grundriss Erdgeschoss, Original-Maßstab 1:200
图纸 © HENN
Grundriss 1. Obergeschoss, Original-Maßstab 1:200
图纸 © HENN
Grundriss 2. Obergeschoss, Original-Maßstab 1:200
图纸 © HENN
Schnitt, Original-Maßstab 1:200
图纸 © HENN
年份
2026
客户
Leibniz Universität Hannover
团队
Marcus Fißan, Markus Elbracht, Susanne Stier, Ronny Zschörper, Reiner Beelitz, Dirk Breuer, Daniela Damato, Sandra Dehli, Martin Erdinger, Oliver Franke, Marta Arce Gonzalez, Niels Henning, Andrea Heuer, Iris Inokhosa, Annalena Jost, Anja Koch, Peter Lee, Wolfgang Malisius, Alexa Rautenberg, Anatolii Romanov, Michael Sadomskyi, Clemens Schiffer, Ammar Teibi, Olha Todosiychuk, Salah Waez
Landschaftsarchitektur bis LP2
Lohaus, Carl, Köhlmos PartGmbB Landschaftsarchitekten
Landschaftsarchitektur ab LP3
chora blau Landschaftsarchitektur
Tragwerk, Bauphysik, Fassadenplanung
Werner Sobek
TGA, Haustechnik
IP-Innovatives Planen GmbH
Brandschutz
Halfkann+Kirchner PartGmbB
Elektroplanung
Taube+Goerz GmbH
Laborplanung
Ingenieurbüro Möller+Partner
Fördertechnik
Ingenieurbüro IBS
Strahlenschutzplanung
Ingenieurbüro WKP
Baudynamik
Baudynamik Heiland & Mistler GmbH

以下出品方的其他项目 HENN 

Merck Modulares Gebäude
Darmstadt, 德国
Vertical Farmhouse
Berlin, 德国
Naturwissenschaftliches Zentrum II, Universität Stuttgart
Stuttgart, 德国
Berliner Feuerwehr- und Rettungsdienstakademie
Berlin, 德国
Medizinische Hochschule Hannover
Hannover, 德国