BESTSECRET
Seinen Hauptsitz im Münchner Umland ergänzt BESTSECRET, ein Online-Memberclub für Premium-Fashion, um ein Büro im Zentrum der bayrischen Hauptstadt. HENN hat die Identität des Unternehmens – als Plattform für kuratierte Luxusbrands – in ein Interior Design übersetzt. Entstanden ist ein Ort, der die Markenidentität stärkt und gleichzeitig eine angenehme, moderne Arbeitsatmosphäre für rund 125 Mitarbeitende schafft.
Das neue Office von BESTSECRET liegt in einem siebengeschossigen Neubau des Architekturbüros LRO Lederer Ragnarsdóttir Oei auf dem neu entwickelten iCampus am Ostbahnhof. Der Innenstadt zugewandt, ist das Gebäude im äußersten Norden des Areals platziert. Über eine städtebauliche Achse öffnet sich ein weiter Ausblick über das Werksviertel und stadtauswärts bis zu den Alpen am Horizont.
Reduziert und zeitlos bildet die Markenästhetik von BESTSECRET eine Bühne für exklusive Fashion Brands im digitalen Raum. Das Interior Design für den neuen Firmensitz nimmt diese Idee auf und transformiert sie durch die sorgfältig ausgewählten Farben, Materialien und Objekte in erfahrbaren Raum. Ein warmes Grau an den Wänden bildet zusammen mit sichtbar gelassenen Betondecken und hellgrauen fugenlosen Böden einen neutralen Hintergrund. Das Gebäude wird so zum physischen Äquivalent der digitalen Markenidentität. Reflektierende und spiegelnde Oberflächen, die den Raum visuell erweitern, und großzügig eingesetzte Textilien nehmen Bezug auf die Modewelt.
Kontrastreiche Strukturen und Formen – kühle Spiegelflächen und warmes Holz, robustes Metall und weiche, bewegliche Textilien – verleihen dem klaren und kohärenten Raumeindruck Atmosphäre. Den industriellen Charakter roher Oberflächen wie Sichtbeton und verzinktem Metall setzen wohnliche Raummöbel aus Holz, welche individuell angefertigt wurden, spannungsvoll in Kontrast. Diese verlaufen entlang der Außenwände und bieten Platz für kleine Sitzbänke und Regale.
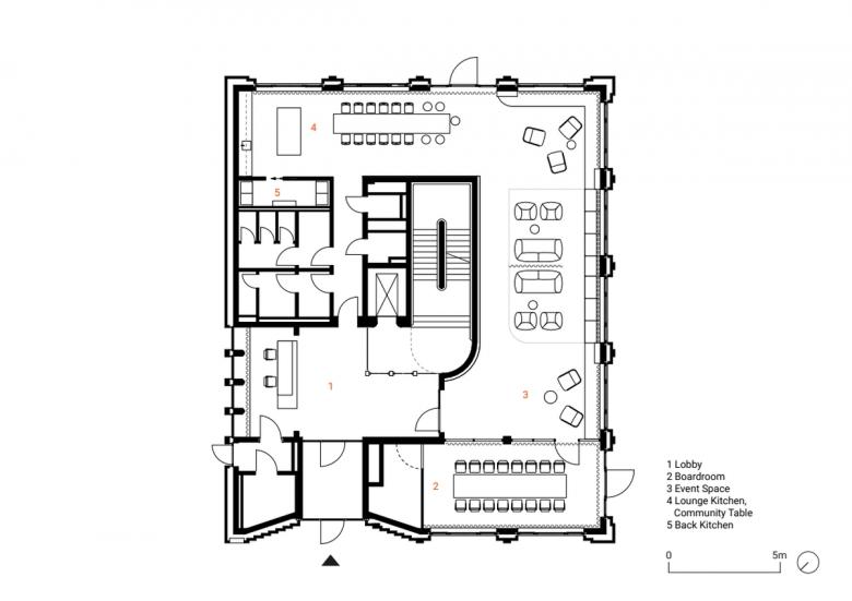
Alle Geschosse sind, je nach Nutzung, unterschiedlich gestaltet. Sie eint der Grundsatz von Transparenz und Offenheit: Glaswände erzeugen ein durchgängiges Raumgefühl auf jeder Etage und erlauben auch aus der Gebäudemitte einen weiten Ausblick. Der Boardroom befindet sich, bewusst von außen einsehbar, im Erdgeschoss und der Innenstadt zugewandt. Auf der gegenüberliegenden Seite wird die Lounge Kitchen mit einem großen Community Table zum Treffpunkt für Mitarbeitende aus allen Etagen.
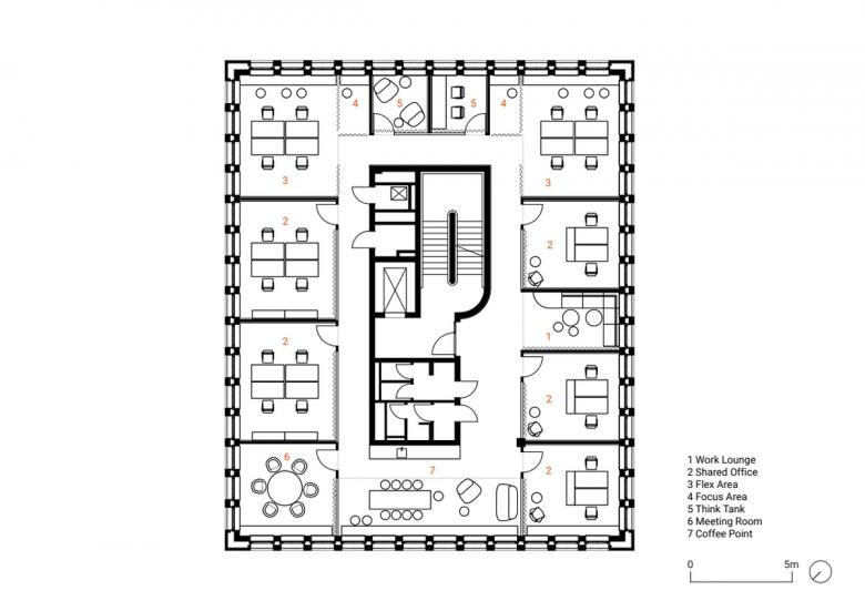
Die Büroflächen in den oberen Etagen sind in unterschiedliche Zonen gegliedert – von kommunikativen Co-Working-Bereichen bis zu kontemplativen Think-tank-Räumen. Raumhohe Vorhänge erlauben eine flexible, noch kleinteiligere Zonierung. Die verschiedenen Bereiche sind bewusst platziert: die offeneren Bereiche zur lebhaften Innenstadt hin, Räume für konzentriertes Arbeiten an der ruhigeren Gebäudeseite.
Für BESTSECRET hat HENN Interior einen Arbeitsort geschaffen, der von der Unternehmensidentität durchdrungen ist – und gleichzeitig eine inspirierende Atmosphäre für die Mitarbeiter*Innen und Gäste schafft.
- 年份
- 2024
- 客户
- BestSecret GmbH
- 团队
- Katrin Jacobs, Yvonne Koll, Martin Henn, Alexandra Berger, Christiane Reichenbach, Kathrin Stamm
- Innenausbau / Tischler
- BES Brunold Holz und Design Manufaktur GmbH
- lose Möblierung
- designfunktion München GmbH
- Lichtplanung
- lumen3
- Medientechnik
- Officemedia
















