Cuatrecasas Lawyers Headquarters
Madrid
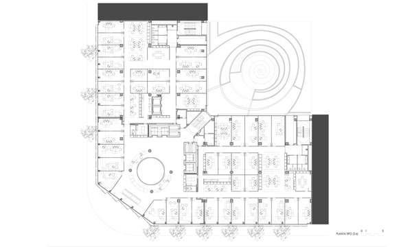
Rehabilitation office building for the new headquarters of the firm Cuatrecasas in Madrid in collaboration with Architects Barbarín Ruiz. Complete refurbishment of a building located in the center of Madrid, preserving its urban character. The facade is projected with a ribbed aluminum skin that protects from the sun and the views. Central courtyard is recovered as core communications and natural light conductor. Neutral materials are used and functional, it makes maximum use of natural light from façade and extending to the inner courtyard and all shipments to be treated with clear glass screens, this gives great comfort not only to the working areas but also the internal circulation spaces between plants.
- Arquitectos
- GCA Architects
- Ano
- 2013
Projetos relacionados
Revista
-
-
-
-
Un despatx madrileny signa un visionari catalitzador urbà en West Palm Beach
Andrea Pala | 29.11.2018 -
L'arquitectura de Francis Keré en escena en el Museu ICO de Madrid
Andrea Pala | 28.10.2018













