Topsportschool
Het imago van de TopSportSchool, kortweg TSS, zou je ‘subliem’ kunnen verwachten, in elke geval prominent aanwezig, als een podium, een trofee, zodat iedereen het kan zien. Maar deze voorstelling gaat in dit ontwerp niet op. De TSS is niet imago, ze creëert imago: een incubator, een ‘machine à exceller’.
MACHINE
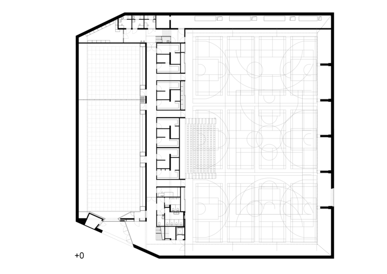
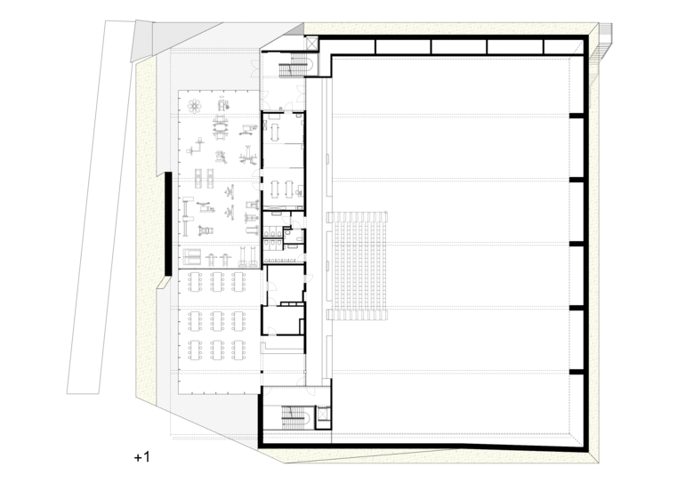
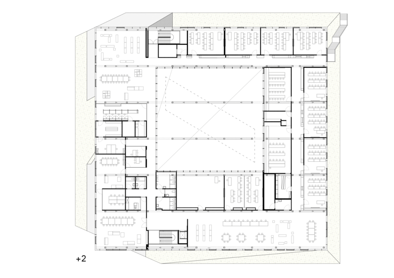
De TSS is een nauwgezette ruimtelijk vertaling van een specifiek programma van eisen. De school moet naadloos, swift en snel functioneren. De tijd van de studenten (én trainers, én docenten) is gelimiteerd, afgemeten, opgelijst in schema, complex combineerbaar. Efficiënte circulatie tussen school en training; kort, rechtlijnig, eenduidig.
A EXCELLER
Specificiteit legt zich boven het machinale als een extra, onmisbare laag. De per definitie narcistische topsporter is constant met het eigen lijf en daaruit voortvloeiende prestaties bezig. Tegenover deze naar zichzelf gerichte blik staat een communicatief kijken naar de andere(n). Uitdaging doet presteren. Doorzichten, spiegelende oppervlakten en voyeuristische plekken als vertaling van dit thema.
Het gebouw zet aan op het Paradeplein van het zesde Brialmontfort en schuift zich gedeeltelijk in het glacis. De gesculpteerde sokkel geeft het, naast de evidente militaire connotatie (bunker/stealth) een ruimtelijke autonomie. Het geheel wordt geïnduceerd bemost, een low-tech vorm van eco-engineering.
Bovenop de sokkel zetten we de “schoolschijf”, een caleidoscopisch, spiegelend glasshouse voor onderwijs. Het spiegelend beeld is echter niet absoluut maar gelaagd en gefragmenteerd. De reflectie wordt hierdoor gecultiveerd, gemanipuleerd en overdrachtelijk.
- Ano
- 2016
- Project Status
- Built
- Cliente
- AG Vespa












