Centralized Heat and Cold Generation Plant of Barcelona South/Zona Franca
Barcelona
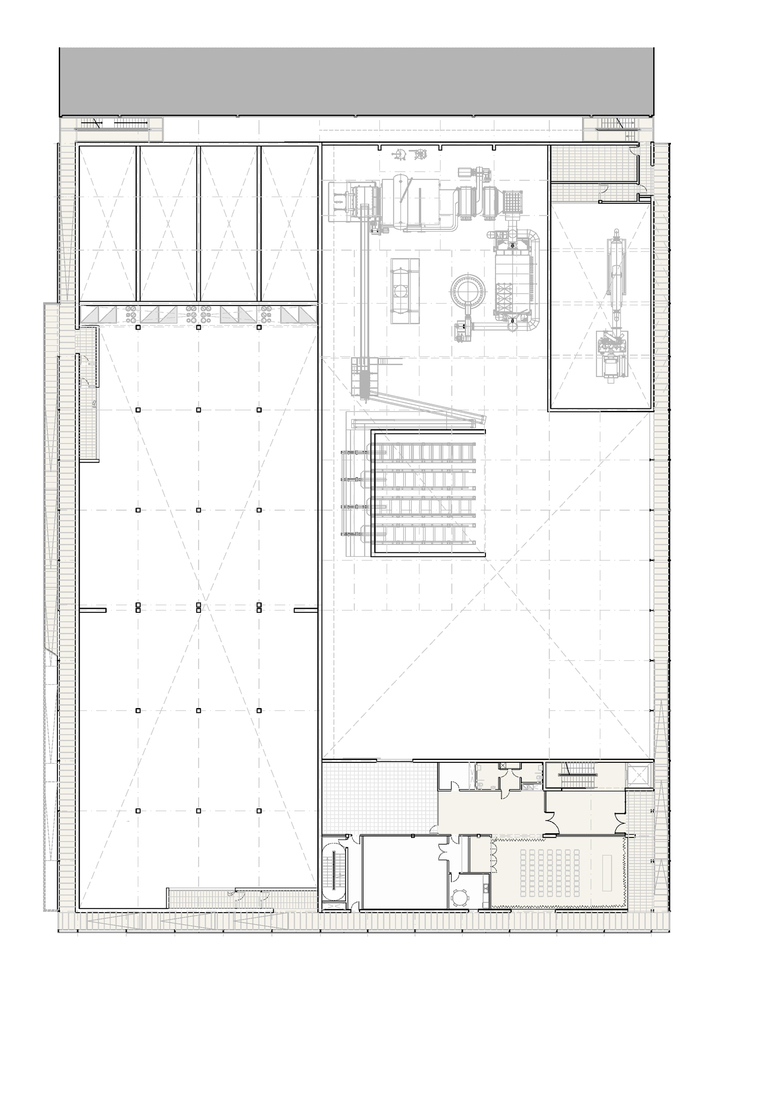
The central station is pioneer in south Europe in terms of sustainable production and use of energy, with several high-efficiency technologies. It provides an urban network of distribution of hot / cold and will inject self-generated electricity to the distribution network, from the use of residual cold from the reagasification station from the maritime port and from the biomass provided by the urban and metropolitan pruning. The architectural actuation adds to the functional program (industrial and office) spaces to show the public the processes of production through a perimeter route tour to the facilities, and at the same time this actuation sets the façades of the building, contributing as an element of education, training and outreach of environmental and sustainability values, which must guide human activity. Each one of the facades is associated with one of the systems present in the central: water, gas and biomass.
- Architetti
- Forgas Arquitectes
- Anno
- 2009
Progetti collegati
Rivista
-
-
-
-
Un despatx madrileny signa un visionari catalitzador urbà en West Palm Beach
Andrea Pala | 29.11.2018 -
L'arquitectura de Francis Keré en escena en el Museu ICO de Madrid
Andrea Pala | 28.10.2018













