CNC residential
Lleida
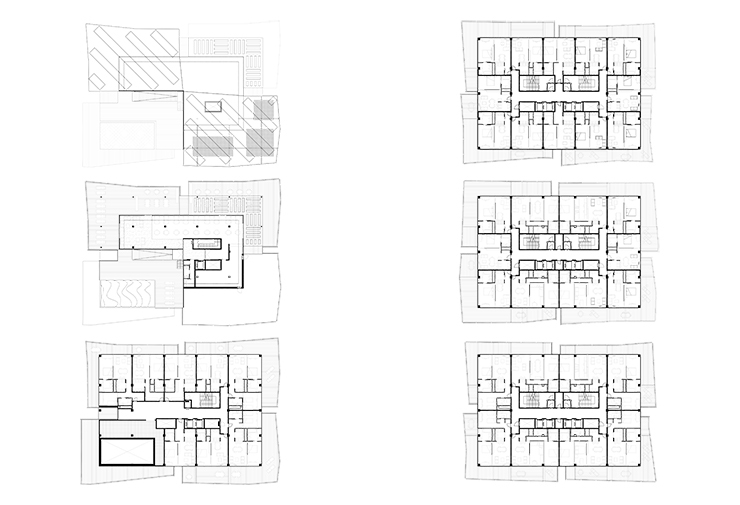
The competition expects 27290,31m2 of roofing above gradient in a municipal plot, the facade faces Segre river and the future "Palau de Congressos de la Llotja"'s building. The draft is adapted to two tower versions, one of ground floor + 15 (A) and another of ground floor + 21 (B), anticipated as an regulation alternative to the modification of Lleida's "General Plan"
- Architectes
- Mamen Domingo | Ernest Ferré Arquitectes
Projets liés
Magazine
-
-
-
-
Un despatx madrileny signa un visionari catalitzador urbà en West Palm Beach
Andrea Pala | 29.11.2018 -
L'arquitectura de Francis Keré en escena en el Museu ICO de Madrid
Andrea Pala | 28.10.2018














