Disseny Hub Barcelona
Barcelona
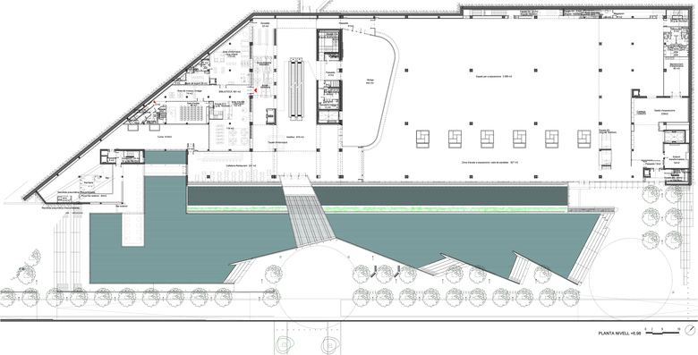
El edificio del Disseny Hub Barcelona se desarrolla a partir de un esquema urbano planificado por el Ayuntamiento de Barcelona con el propósito de ser el centro neurálgico de una red de instituciones, centros, museos, laboratorios, empresas y personas que trabajan con y para el diseño. Se trata de un centro cultural de 29.352 m² que incluye el Museo del Diseño y que reúne a las distintas colecciones de artes aplicadas (artes decorativas, cerámica, moda, arquitectura, artes gráficas, diseño industrial, diseño digital y multimedia), las oficinas del FAD (Foment de les Arts i del Disseny), las del BCD (Barcelona Centre del Disseny), y la biblioteca pública “El Clot-Josep Benet”. El edificio se compone de dos partes: una subterránea (aprovechando el cambio de nivel provocado por la urbanización de la plaza de las Glorias) y otra que emerge sobre el nivel +14,50 m. Esta última son unos paralelepípedos con la misma anchura que la calle Ávila, de manera que hace de final y de indicador de las relaciones Ensanche-plaza sin cerrar las vistas del gran parque central. La cubierta del subterráneo tiene el tratamiento y uso de espacio público, relacionado, por lo tanto, con el futuro proyecto de la plaza de las Glorias. La alfombra verde es un componente que garantiza la sostenibilidad y el fácil mantenimiento del conjunto, y el lago es un subrayado compositivo que relaciona los distintos niveles.
- Arquitectos
- MBM Arquitectes
- Año
- 2013
Proyectos relacionados
Magazine
-
-
-
-
Un despatx madrileny signa un visionari catalitzador urbà en West Palm Beach
Andrea Pala | 29.11.2018 -
L'arquitectura de Francis Keré en escena en el Museu ICO de Madrid
Andrea Pala | 28.10.2018












