Fuyang Yinhu Sports Center
Project Name: Fuyang Yinhu Sports Center - Shooting, Archery and Modern Pentathlon Venue for the Asian Games
Project Type: Sports architecture
Architectural Firm: ACRC, The Architectural Design & Research Institute of Zhejiang University
Firm Website: www.uad.com.cn
Email: [email protected]
Company Location: Hangzhou, Zhejiang
Project Address: West of the Intersection of Jiulong Avenue and Longxi South Road, Yinhu New District, Fuyang, Hangzhou, Zhejiang
Completion Status: Completed
Design Duration (from Start to Ending): July 2018 to March 2019
Construction Duration (from Start to Ending): March 2019 to June 2021
Land Area (in Square Meter): 275,182m2
Floor Area (in Square Meter): 82,360.35m2
Visual information
For photo photography: Zhao Qiang
For video photography: Wu Qingshan
Chief Design Manager: Hu Huifeng
Project Person in Charge: Zhang Chenfan and Li Bing
For architecture: Zhang Chenfan, Fang Hua, Lv Ning, Huang Diqi, Zhu Jinyun and Zhang Ziquan
For structure: Zhang Zhengyu and Jiang Fan
For water supply and drainage: Ouyang Hui and Wang Tiefeng
For HVAC: Cao Zhigang, Zhu Shengwei and Li Xintong
For electrical: Yuan Songlin, Feng Shizhen, Zou Fan and Zheng Kai
For intelligentization: Lin Hua, Ye Minjie and Yuan Xiaonan
For lighting: Wang Xiaodong, Wang Junjie, Liu Yihan, Feng Baile and Wu Xuhui
For decoration: Ye Jian, Huang Jianghui and Lin Yunhui
For decoration electrical: Xiao Shuzheng and Yu Zicheng
For curtain wall: Hang Fei, Dou Lisha, Luo Wenxin and Yuan Zengrong
For gardening: Feng Bin, Wu Jina, Shen Haitao, Zhang Beibei, Xu Hui, Wang Jue and Zhu Qunjian
For municipal administration: Chen Hao, Wu Lingling, Ling Jiayuan, Zhou Hua, Zhu Min, Wang Xueyan and Sun Zhe
For rock-soil: Chen Yun, Yang Qinfeng, Xin Lei and Gu Jiacheng
Principal: Hangzhou Fuyang Yinhu New District Construction Co., Ltd.
Constructor: Shanghai Baoye Group Corp., Ltd.
Building materials
Roof: Aluminum-magnesium-manganese metal roof
Facade: Aluminum alloy shutter curtain wall
Interior facade: Wood wire sound-absorbing board
Fuyang Yinhu Sports Center - Shooting, Archery and Modern Pentathlon Venue for the Asian Games | The Architectural Design & Research Institute of Zhejiang University
Perceiving the Landscape and Lighting the Nature
Less than 100 days before the opening of the Asian Games Hangzhou, Fuyang Yinhu Sports Center is ready for the arrival of the Asian Games, the sustainable operation after the Games and the evaluation from all walks of life.
The design team of the Architectural Design & Research Institute of Zhejiang University adheres to the design concept of "realizing green Asian Games through economic means and constructing cultural Asian Games through low-tech means". On the basis of respecting professional sports technology requirements, combining with the landscape intention with Fuyang characteristics, as well as adopting a simple form, a compact spatial layout, environmentally friendly building materials, low-tech construction means and sustainable venue facilities, the competition venues (sites) for shooting, archery and modern pentathlon during the Asian Games are designed, aiming at successfully implementing the holding purpose of "green, intelligence, conciseness and civilization" of the Asian Games.
With a land area of 275,182m2 and a floor area of 82,360.35m2, this project is one of the 12 newly built venues for the 19th Asian Games in 2023. At that time, the three major events of shooting, archery and modern pentathlon in the Asian Games will be held here.
01 Perceiving the landscape
The site is surrounded by mountains in the west and north, bordered by water in the south and connected with the city in the east. Standing in the center of the site, the venue is embraced by mountains, which reminds people of the distant mountains and near waters along the Fuchun River, Su Shi's natural perception of "distant mountains, chaotic clouds and green places", and Huang Gongwang's feelings embodied in his Dwelling in the Fuchun Mountains of "where you are happy, you don't know how to arrange it". Huang Gongwang turned his thinking on philosophy and literature into the interaction among rocks, sands and clouds. And the most important thing in life is not career and wealth, but self-cultivation, and the leisure and calm of caring for mountains and waters and melting into the nature.
Therefore, the program considers how to apply contemporary construction techniques to create a diversified and composite sports arena, how to return to the origin of the place and get along with the landscape while satisfying the functions of the competition, and then perceive and interpret it, as well as how to convey the flavor of Hangzhou and the characteristics of Fuyang to the athletes and coaches of the participating countries.
02 Modern deduction
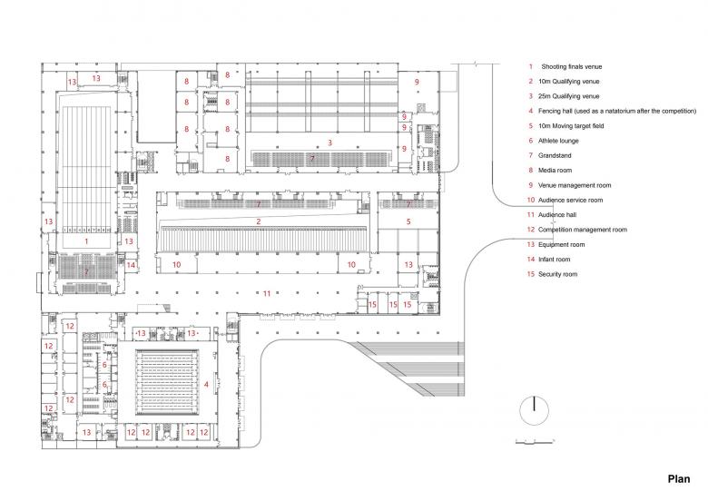
At the site, 5 elevation terraces are set up to respond to the changes in elevation of the mountain area, fully considering the protection of the natural environment of the mountains, reducing mountain excavation and balancing the internal earthwork. The three competition events are efficiently connected through the second-floor platform to reasonably organize the flow of people; the zones for 10m qualifying competition, 25m qualifying competition, 50m qualifying competition and final competition of the shooting competition are vertically distributed, and the common functions of the three events are centrally arranged in the press and security center to intensively and efficiently utilize the site.
In terms of landscape, the shooting gymnasium is square in plane and huge in volume. The architectural modeling adopts the connection of multi-section sloping roofs, conforms to the surrounding mountains, dispels the building volume, and integrates the buildings with the nature; and in terms of facade design, the Dwelling in the Fuchun Mountains is deduced in a modern way by parametric means and pixelated techniques, completing a process ranging from abstraction to figuration and expressing abstraction by figuration.
In terms of surface, the building abandons parametric high-tech techniques such as mechanization, intelligence and informationization, and adopts modular and low-cost standard components to realize them with low technology. In terms of design, 300mm*520mm louvers are used as unit modules. Through the rotation of more than 37,000 unit modules at different angles, the natural scenery along the Fuchun River is sketched again in a low-tech and simple rotating shaft mode, featuring "with louvers as the brush and sunlight as the ink".
In terms of construction, the rotation angle of the unit shutter is controlled by the gears at the bottom of the shutter. Each gear is molded and produced with a minimum modulus of 5°, and the rotation angles of the shutter are limited to 15° to 85°, and are divided into 15°, 20°, 25°, 30°, 35°, 40°, 45°, 50°, 55°, 60°, 65°, 70°, 75°, 80° and 85°, a total of 15 angles. The smaller the angle modulus, the higher the number of units, the higher the pixels, and the landscape intention becomes clearer. During construction, the rotating shaft angle can be accurately controlled to be installed in place only according to the louver angle shown in the figure. Through these 15 simple louver rotation angles, complex pattern effects can be expressed with the help of sunlight.
03 Lighting the nature
The so-called lighting the nature originates from the phase "learning from the nature", which means not only imitating the nature, but also taking natural light as a teacher, imitating the changes in light and shadow, and then applying the changes in light and shadow to reinterpret the nature in a simple and natural way.
The surface that changes with the changes in light tells a story of light. When the sun rises and the smoke dissipates, the building facade gradually unfolds and the shadows gradually decrease; at noon, the sunlight shines directly on the mountaintop, the curtail walls and the louvers are in a strong contrast, and the distant mountains and near waters are clearly presented; at sunset, distant mountains, driving boats, ancient trees and every aspect of the Fuchun landscape slowly disappear into the architectural surface; and at night, a beautiful Fuchun landscape will slowly unfold again under the influence of floodlight. Time is always the most precious, as the sun turns, shadows move and everything flourishes; and the shadows of the louvers silently record the traces of the passage of time.
The building cleverly uses natural light to reproduce the Fuchun landscape with the brightness of the sun and the moon and the alternation of four seasons.
04 Continuous operation
The vast majority of competitive stadiums and gymnasiums are often invested heavily but seldom used, especially those featuring strong professionalism, small audience and high competition level like Yinhu Sports Center.
This project adheres to the design strategy of green and low carbon, rapid demolition and construction, and component reuse. In terms of use space, structure selection and building facilities, they give full considerations to the possibility of using various scenes after the competitions, for example, news and security center, auxiliary rooms, stables, etc. take a large number of recyclable steel structures as the main structures; the spectator stand adopts a temporary one in steel structure, which is convenient for demolition after the Games; and the competition sites transform into the places for mass sports like swimming, basketball, badminton and table tennis with higher public participation, returning to the people and maintaining sustainable operation.
The project takes landscape intention as the blueprint, louver as the brush and sunshine as the ink, and re-expounds, adopts, imitates, expresses and interprets the nature in the natural landscape. Through brushwork, techniques and constructions, redrawing the image of Jiangnan landscape like the Dwelling in the Fuchun Mountains is a kind of cultural transmission, which transmits the charm of Hangzhou culture and the characteristics of Fuyang landscape to the world.
- Year
- 2021
- Project Status
- Built




























