Neubau Ganzjahresstützpunkt Maulbronn
Solarernte in Straßenmeisterei
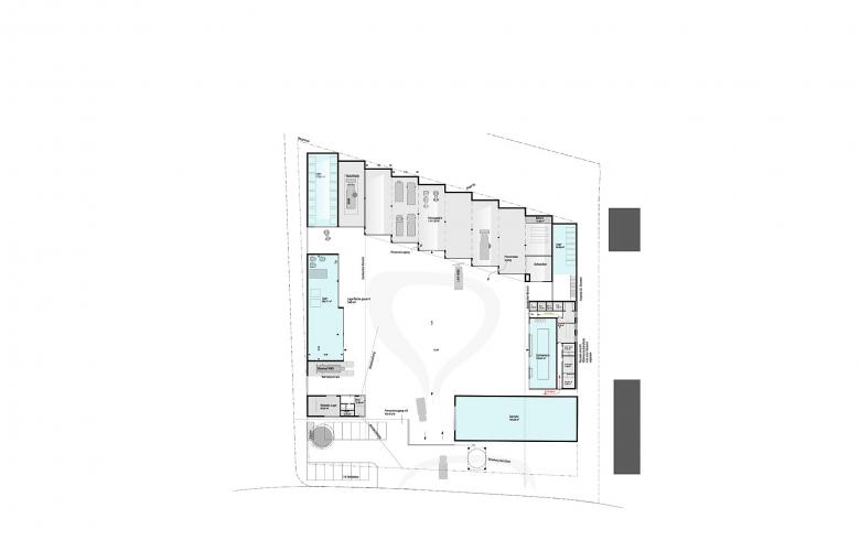
Neubau Ganzjahresstützpunkt Maulbronn
Der Ganzjahresstützpunkt Maulbronn wurde ab 1966 zur Streckenkontrolle, Straßenunterhaltung und Übernahme des Winterdiensts in der Region errichtet. Die Gebäude sind, auf Grund ihres Alters und der bauzeittypischen Bauweise, in einem schlechten Zustand und nicht voll nutzbar.
Der Gebäudeentwurf zielt auf eine Erneuerung der Gesamtanlage, die Bündelung der Abläufe und eine räumliche Fassung der vielfältigen Hallen und Nebenanlagen. Ziel ist es einen Werkhof zu schaffen, in welchem die internen Abläufe räumlich konzentriert sind und ein angemessenes Erscheinungsbild nach außen entsteht. Die Hallen und Überdachungen des „neuen“ Werkhofs nutzen die bebaubare Fläche des Grundstücks vollkommen aus. Die vielfältigen Nutzugsbereiche aus Werkhallen, Überdachung, Schilderhalle und Sozialbereich ordnen sich homogen in die Fassadenhülle aus sägerauem, lasiertem Nadelholz ein und bilden nach außen eine geordnete Einheit. Die Bewohner des angrenzenden Wohngebiets blicken zukünftig aus erhöhter Lage auf einen wertig gestalteten Ganzjahresstützpunkt, der durch die in die Zukunft gerichtete Gebäude- und Energietechnik einen sichtbaren Beitrag zum verantwortungsvollen Umgang mit der baulichen Umwelt liefert.
Auf den robusten Sichtbetonsockel setzt sich eine Holzkonstruktion in Holzständerbauweise, welche bedarfsgerecht wärmegedämmt oder als Kalthallenkonstruktion konzipiert wird. Entwurfskonzept ist es, die Dachfläche mit einer wirtschaftlichen, praxistauglichen Dachhaut auszustatten, welche leicht die Integration von PV-Paneelen ermöglicht.
Die Schilderhalle, die neben dem Kaltbereich zur Lagerung von Straßenschildern auch den Sozialbereich mit Umkleiden, Duschen und Aufenthaltsraum für die Belegschaft beinhaltet, wird räumlich erweitert, neu strukturiert und an den heutigen Standard angepasst. Der Aufenthaltsraum, als soziales Zentrum der Belegschaft, wird mit Ausblick in den Werkhof und dadurch mit einer selbstverständlichen Kontrollfunktion platziert.
Link zum Projekt: https://www.thoma-lay-buchler.de/projekte/1-ba-ganzjahresstuetzpunkt-maulbronn/
- Year
- 2025
- Project Status
- Under Construction

















