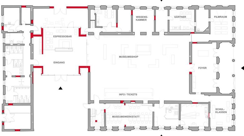
Visitor Centre at the New Palace
The former guard house, which was built by Carl von Gontard in 1768/69 for the New Palace is part of the world heritage site "Sanssouci". Together with the so-called Kaiserliches Baubüro (imperial construction office), built 100 years later, it is being restored according to the specifications for monument preservation and converted to the visitor centre at the New Palace.
The project includes measures such as the partial demolition of old extensions, the conservation of historic interior decorations, façade renovation and restoration of historic windows and walls.
A pavilion is gently inserted between the guardhouse and the western extension of the former imperial construction office so that a new south oriented entrance area will be created. The courtyard of the existing building will be covered with a self-supporting steel structure and provides the space for the central visitor facilities.
- Year
- 2013











