Senior High School Neulengbach
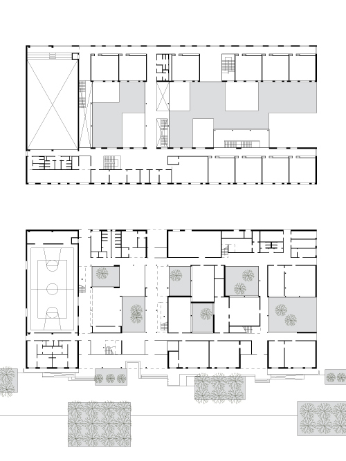
Summarised excerpt from the jury’s protocol: "The interesting atrium typology brings an innovative quality into school building. The Project distinguishes itself through its principal orientation to the site with a logical access zone in the south between the car park, the entrance area of the school and the external entrance of the gym hall. It convinces by the plain structure of the ground floor which is visible on the eastside of the building and thereby creates a direct reference to the surroundings. The merging of interior and exterior space creates interesting spatial qualities which support new teaching methods. The well-considered arrangement of the classrooms provides interesting and distinguished spaces. The spatial qualities - especially on the two usable levels of the inner courtyard - are particulary recognised. The project is also very sophisticated in that it lends itself to possible future extensions."
Landscape Architecture: idealice Landschaftsarchitektur
- Year
- 2010








