Grundschule am Jungfernsee
„Also lautet ein Beschluss: Dass der Mensch was lernen muss. Nicht allein das Abc bringt den Menschen in die Höh. Nicht allein im Schreiben, Lesen übt sich ein vernünftig Wesen. Nicht allein in Rechnungssachen soll der Mensch sich Mühe machen. Sondern auch der Weisheit Lehren muss man mit Vergnügen hören." Wilhelm Busch
neue Pädagogik und neue Architektur
Herrschten bei Lehrer Lämpel bei Wilhelm Busch noch Frontalunterricht, Konformität und Enge, so setzen wir heute ganz im Sinne einer modernen, auf individuelle Förderung ausgerichtete Pädagogik auf flexibel nutzbare Raumkonzepte und informelle Lernbereiche. Ein symbiotisches Zusammenwirken von Architektur, Organisation und Pädagogik ist das Ergebnis.
ganztägig und inklusiv genutzte Lern- und Lebensräume
Schulen haben sich zu ganztägig und inklusiv genutzten Lern- und Lebensräumen entwickelt. Die neuen Schulen benötigen flexibel nutzbare Raumkonzepte. Die „große Schule“ wird dafür in mehrere kleine Organisationseinheiten, die „kleinen Schulen“ oder „Cluster“, unterteilt. So ermöglicht die Organisation in Clustern, in großen Schulen teilautonome sozial-räumliche Einheiten zu schaffen, die für Schüler*innen und Lehrkräfte überschaubar sind und eine Art „Beheimatung“ erlauben. Aus diesen pädagogischen Zielvorgaben ergeben sich neue architektonische Anforderungen. Die Architektur wird zum Pädagogen.
Natürlich gibt es auch „normale“ Klassenräume, aber eben nicht nur. Der Unterricht darf auch in den anderen, informellen Bereichen stattfinden: Auf der großen Foyertreppe mit integrierten Sitzstufen zum Beispiel, in den als grüne Klassenzimmer gestalteten Innenhöfen sowie in den öffenbaren Freiräumen am Abschluss eines jeden Clusterbereiches.
Die rote Kaserne stand Pate.
Doch der Reihe nach: Die neue Grundschule am Jungfernsee in Potsdam befindet sich im denkmalgeschützten Umfeld der Roten Kaserne. Um die Sichtachsen des historischen Areals zu wahren, wurde die Höhenentwicklung des Neubaus auf zwei Geschosse beschränkt und auch in der Wahl der Klinkerfassade orientiert sich der Neubau am Denkmalensemble.
Die Rote Kaserne ist hier nicht bloß unmittelbare bauliche Nachbarschaft, sondern deutliche Referenz für das Kleid der neuen Schule.
Das Rot der Klinkerfassade aus einem Wasserstrichklinker mit unregelmäßiger Oberflächenstruktur wird durch roten Fugenmörtel überhöht nach dem Motto „wenn schon rot, dann richtig“. Die Fassade wirkt damit insgesamt homogener, ohne aber das klinkertypisch Flirrende, Bewegte zu verlieren. Es entsteht je nach Fassadenfläche und Tageslichteinfall ein feines Spiel aus unterschiedlichen Rottönen von orange bis tiefrot und dem Fugenbild der im wilden Verband gemauerten Klinker.
Licht und Luft. Blicke und Beton
Betritt man die neue Grundschule am Jungfernsee, tritt man in ein lichtdurchflutetes Foyer. Die Sonne wirft als Zenitlicht spannende Schlagschatten an die rauen Betonwände. Durch die Mensa kann man zum Schulhof blicken und auch neben der tiefergelegten Turnhalle blickt man durch lange Fensterbänder ins Freie.
Die Blickbeziehungen lassen eine einfache Orientierung in Inneren zu. Man sieht alles auf den ersten Blick. „…die zentrale Halle mit dem großzügigen Foyer- und Treppen-Bereich besticht mit Klarheit und Offenheit. Die Anordnung der Klassenräume um die offenen Innenhöfe und die jeweils zu den Abschlüssen der Flügel hin angeordneten offenen Gruppenräume lässt ein hohes Maß an Flexibilität und Kommunikation erwarten.“ so steht es im Preisgerichtsprotokoll zum gewonnenen Wettbewerb.
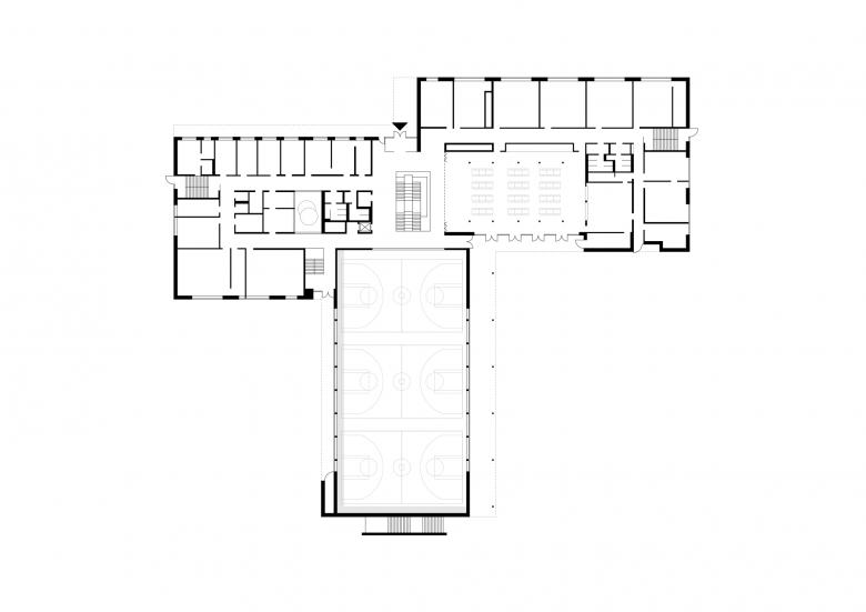
Im Anschluss an den Haupteingang liegt zentral die großzügige Halle. Diese Halle beherbergt die Haupterschließung und ist zugleich Ort für Kommunikation und Treffpunkt der Schüler*innen und ergänzt bei schlechter Witterung die Pausenflächen. Alle Gebäudeteile sind von hier aus schnell auffindbar und auf kurzem Weg erreichbar. An die Halle grenzt ein multifunktionaler Raum für die Nutzung als Speiseraum und Aula an, der fließend in den begrünten Außenbereich des Schulhofs übergeht.
Im Obergeschoss bilden drei Cluster die Heimatbereiche der Schüler*innen. Die Räume eines Clusters gruppieren sich jeweils um ein begehbares Atrium mit angeschlossener Lerninsel. Die gut belichteten Flure sichern eine einfache Orientierbarkeit und Aufenthaltsqualität. Im Zentrum des Obergeschosses befinden sich an die Halle angegliedert Lehrerzimmer und Bibliothek mit Medienraum, ergänzt durch Aufenthaltsflächen für die Pause.
Schule für Alle
Eine stufenlose Erreichbarkeit aller Ebenen liegt der Gebäudekonzeption zugrunde. Neben Menschen mit körperlichen Einschränkungen wurde für sensorisch- oder sinneseingeschränkte Schüler*innen nach dem Mehr-Sinne-Prinzip über eine elektroakustische Anlage und kontrastreiche Gestaltung der Verkehrswege eine Nutzung des Gebäudes ermöglicht. Dabei wurde die Nutzungsqualität für alle Schüler*innen, behindert wie nicht behindert, bedacht und Inklusion auch im Sinne der Aufmerksamkeit, Rücksichtnahme und Hilfestellung in der Gemeinschaft als Lernziel betrachtet.
Es herrscht eine hohe Durchlässigkeit des Außenraums mit fließenden Übergängen zwischen den Bewegungs- und Regenerationsbereichen, flexible und multifunktionale Außenräume, deren Nutzungen sich auch überlagern können, eine enge Verzahnung von Innen- und Außenraum sowie das Angebot von unterrichtsbezogenen Zonen aber auch Rückzugsräumen. Die drei Flügel der Gebäudefigur sorgen für klare Zuordnungen im Außenbereich. Im Norden ist der Vorplatz der klar definierte Auftakt für das Gebäude und zugleich ein stadträumlich neues Element an diesem Ort. Die Versiegelung des Freiraums wurde auf die notwendigen Erschließungsbereiche beschränkt.
Farbige Akzentsetzung und Materialsichtigkeit
Der Neubau wurde als Stahlbetonskelettbau mit massiven Brüstungselementen und Flachdecken auf Stahlbetonstützen errichtet. Im Bereich der Auskragungen wurden die Untersichten und Wandflächen mit einer dunklen vorgehängten Aluminiumfassade bekleidet. Somit werden diese Bereiche gestalterisch von der monolithischen Ziegelfassade differenziert und wirken wie Anschnitte des Volumens.
Aula, Turnhalle, Innenhöfe und Atrien erhielten Pfosten-Riegelfassaden als thermisch getrennte Konstruktionen mit Dreifach-Isolierverglasung und Sonnenschutzverglasung. Fenster wurden in Holz-Alu-Konstruktion entsprechend EnEV-Anforderungen gefertigt. Die tragenden Wände und die Stahlbetondecken wurden massiv ausgebildet, um sie als Speichermassen zur Bauteilaktivierung nutzen zu können.
Im Innenraum dominieren eine kräftige Farbigkeit und die eingesetzten Materialien, Sichtbeton im zentralen Eingangsbereich, gespachtelt in den übrigen Bereichen mit weißem Anstrich, Deckensegel aus zementgebundener Holzwolle, weiße Trennwände, Fußböden aus Gussasphalt und Linoleum sowie die eigens entwickelten Garderoben- und Schrankeinbauten.
minimierter Energiebedarf
Die Wärmeversorgung erfolgt über die anliegende Fernwärmeleitung des lokalen Versorgers. Der Heizlastbedarf ist durch die Gebäudehülle in Anlehnung an den Passivhausstandard minimiert. Die Klassenräume sind mit einer unterstützenden Lüftung mit einem optimierten Luftwechsel von 11m³/h je Schüler versehen.
- Year
- 2020
- Project Status
- Built



















