Fraunhofer Institut für Sichere Informationstechnologie
Der Eisberg – Ein Neubau für das Fraunhofer SIT – „Eisberg“ nennen die Darmstädter den Neubau für das Fraunhofer SIT. Sehen die Bewohner der Wissenschaftsstadt Darmstadt die unsinkbare Titanic kommen? Erahnen sie unterirdische Stockwerke? Erinnert sie die Fassadengestalt an kalbende Gletscher?
Wir wissen es nicht. Das Ziel „Akzentsetzung statt Austauschbarkeit“ scheint aber erreicht zu sein, wenn das Gebäude bereits heute in der Wahrnehmung der Öffentlichkeit verankert ist. Erreicht wird die Akzentsetzung vor allem durch die Fassadengestalt, die durch vorgehängte Elemente in unterschiedlichen Tiefen ausgebildet wird. Weiß wie Eis legt sich die reliefartig wirkende Gebäudehülle um die sechs Obergeschosse. Mit ihren Vor- und Rücksprüngen und dem dadurch entstehenden Schattenwurf bildet sie eine dreidimensionale Analogie zu den Authentifizierungscodes, einem der vielen Arbeitsgebiete des Fraunhofer-Instituts für Sichere Informationstechnologie.
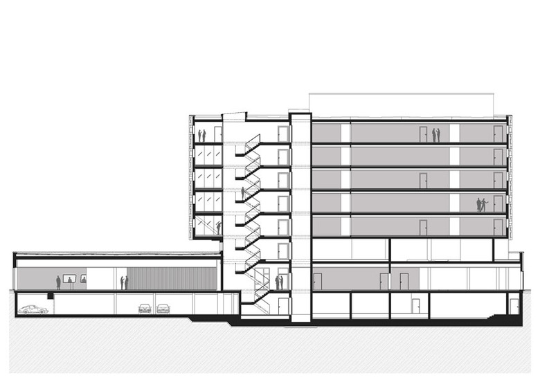
Der Neubau von SEHW Architektur aus Berlin ist ein Erweiterungsbau des bereits seit 1963 bestehenden ersten deutschen Großrechenzentrums, welches als freie Einrichtung mit verschiedenen Hochschulen und anderen Forschungsinstituten kooperierte. Der damals sehr moderne Bau mit breitem Sockel und zurückliegendem zweigeschossigen Aufbau erhielt nun eine zeitgemäße Erweiterung. Um die Einheit von Bestands- und Neubau zu unterstreichen und den Straßenraum zu fassen, wird der flache Sockelbau auch im Neubau erweitert. Als weiterer Aufbau erhebt sich über dem Sockel der durch ein Zwischengeschoß abgesetzte sechsgeschossige Büroriegel und setzt einen starken, weithin wahrnehmbaren Akzent in der Stadtsilhouette.
Hinter der Fassade befindet sich viel Platz für Forschung und helle Köpfe – Das Erdgeschoss ist Entree und Schaufenster zugleich, Einblicke sind explizit gewünscht. Kongresse, Empfänge und das alltägliche Treiben der Mitarbeiter und ihrer Kooperationspartner sollen nicht im Verborgenen stattfinden, sondern sich offen durch die großflächige Verglasung nach außen zeigen. So wird das Foyer zu einer einladenden Geste.
Auch im Innern ermöglichen Glaswände Durchblicke und unterstützen den transparenten Eindruck. Da sich im Alltag zu viel Offenheit bei Gleichzeitigkeit mehrere Aktivitäten störend aufeinander auswirken kann, bieten textile Wände die Möglichkeit, Räume abzugrenzen. Diese frei gestaltbaren Volumen können den unterschiedlichsten Situationen angepasst werden und bieten so kurzfristige Nutzungsflexibilität. Durch dezenten Farbeinsatz von erdigen Tönen im Zusammenspiel mit hellen Oberflächen entsteht ein zurückhaltendes elegantes Gesamtbild.
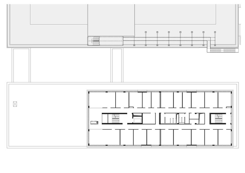
Klare Orientierung, kurze Wege, sinnvolle Verbindungen, Flexibilität in der Nutzung – Im Neubau werden Wegebeziehungen optimiert, kurze Wege für die Mitarbeiter und gemeinsame Kommunikationsinseln fördern den Austausch untereinander und den kreativen Prozess der Arbeit. Zentrale Treppenhäuser schaffen durch Glaswände und einen über alle Etagen reichenden Luftraum eine Verknüpfung zwischen den Geschossen. Kurze Wege ermöglichten auch beim Konzept für die Gebäudetechnischen Anlagen Leitungslängen und Betriebskosten zu minimieren. Zentrale Schächte in der Mittelzone und Doppelböden in den Geschossen sorgen für eine hohe Nutzungsflexibilität und einfache Nachinstallation. Das Gebäude ist gerüstet für die Veränderungen der Zukunft. Energieeffizienz und Nachhaltigkeit sind nicht nur Schlagworte, sondern erklärtes Ziel dieses Forschungsbaus.
Konstruktion – Das Gebäude wurde als Stahlbetonskelettbau mit einem wirtschaftlichen Achsraster und aussteifenden Kernen in der Mittelzone des dreibündigen Grundrisses konstruiert. Die Außenwand wird als Bandfassade ausgebildet.
Transparenz und Sicherheit. Geht das? – Ein Gebäude für Cybersicherheit. Das kann ein übergroßer Registrierkasten in Berlin sein, eine gebaute Cloud in Cupertino oder ein Eisberg in Darmstadt. Keine Black Box, sondern ganz im Gegenteil: Transparenz und gleichermaßen Verschlüsselung sind die Stichwörter. So können sich sensible Bereiche den Blicken der Öffentlichkeit bei Bedarf entziehen, aber genauso Kommunikation nach innen und außen stattfinden.
Transparenz ist das neue Schwarz! Aber sicher!
Team
Projektleiter: Hendrik Rieger
Stellvertretender Projektleiter: Martin Krüger-Holdack
Bauleitung: Wolf Ludwig
Projektteam: Kathi Weber-Hoch, Ismael Keita, Meredith Atkinson, Bettina Fauth
VOF-Verfahren: Sandra Schober, Frank Menzel, Kathi Weber-Hoch
Bauherr
Fraunhofer-Gesellschaft
Fotos
Kathi Weber-Hoch
- Year
- 2014
- Project Status
- Built


















