Erweiterung und Sanierung Andreas-Grundschule
Lernlandschaften unter Dachlandschaften – Am neuesten Projekt von Sehw Architektur lassen sich ein ums andere Mal die drei Säulen der Architektur von Sehw ablesen. Der Holzneubau im Bestandsensemble besticht durch seine innovative Herangehensweise, punktet in Sachen Nachhaltigkeit und schafft sozialen Mehrwert.
Keine leichte Bauaufgabe stellte sich den Architekt*innen. Es galt zwei in die Jahre gekommene Bestandsgebäude aus den Fünfziger Jahren zu sanieren und durch mehrere Neubauvolumen zu einem gesamtheitlichen Ensemble zu verbinden. Ziel war es, eine zeitgemäße und pädagogisch inspirierende Lehr- und Lernumgebung zu schaffen, die den modernen Anforderungen an Bildungseinrichtungen entspricht. Das neu entstandene „Lerndorf“ mitten in der Stadtmit seinen vier Gebäuden schafft genau das. Der Holzneubau auf dem bestehenden Schulcampus vermittelt in seiner Gestaltung zwischen der Bestandsbebauung und dem Neubau, indem er die Satteldächer der Nachkriegsmoderne weiterbaut und in eine Landschaft aus geneigten Dachflächen überführt.
Der Fokus lag auf einer sinnstiftenden Integration des Neubaus in die vorhandene Bebauungsstruktur, wobei die Schaffung von zusätzlichen Klassenräumen für 100 Schüler*innen und einer modernen Schulmensa im Vordergrund stand. Die bauliche Lösung von Sehw schafft eine hohe Aufenthalts- und Raumqualität, indem die Dachlandschaften auch im Innern wahrnehmbar sind und zudem sozialen Mehrwert durch an die moderne Pädagogik angepasste Raumlandschaften und informelle Lernbereiche. Damit wurde nicht nur das Raumangebot um einen Zug erweitert, sondern auch den steigenden Bedürfnissen im Bereich der schulischen Ganztagsbetreuung und Verpflegung Rechnung getragen. Das gesamte Vorhaben wurde unter Sicherstellung einer nachhaltigen und energieeffizienten Bauweise geplant und realisiert.
Die größte Herausforderung bestand darin, die Baumaßnahmen auf beengtem Grundstück in innerstädtischer Lage im laufenden Schulbetrieb durchzuführen und dabei Störungen für Schüler*innen und Lehrer*innen zu minimieren. Auch ein Grund dafür, die Neubauten als vorgefertigte Holzsystembauten zu errichten. Durch die ganzheitliche Planung wurden nicht nur architektonische, sondern auch organisatorische Aspekte berücksichtigt.
Materialwahl und Bauweise
Sehw Architektur setzte konsequent auf eine Holzsystembauweise, um ökologischen Aspekten Rechnung zu tragen und gleichzeitig eine ästhetisch ansprechende Gestaltung zu ermöglichen. Das Volumen mit seiner charakteristischen Dachlandschaft, seiner vertikalen Holzschalung als Gebäudehülle und den frei komponierten Fensteröffnungen verleiht dem Gebäude eine kraftvoll-spielerische Optik. Bei der Material- und Farbwahl wurden weitestgehend natürliche und warme Oberflächen und Töne eingesetzt. Kräftige Farben sollen die Kinder selbst ins Haus bringen. Einzige Ausnahme ist ein kräftiges Gelb bei den Türen zur Akzentuierung und Orientierung.
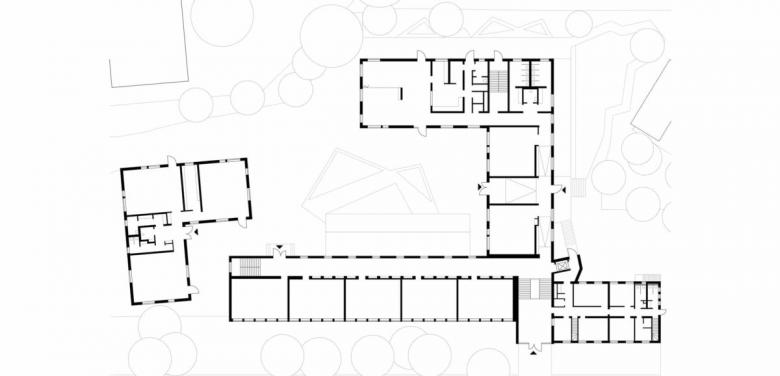
Gestaltung und Grundriss
Die L-förmigen Grundrisse der Neubauten spannen mehrere zusammenhängende Freibereiche auf, die entsprechend programmatisch gestaltet wurden als Schulgarten, Pausenhof, Bewegungsfläche, etc. Zu den Schulhöfen orientiert wurden im Grundriss die Bewegungszonen zugeordnet. Damit entsteht Frequenz, entsteht Sichtbarkeit und Kommunikation. Die Klassen- und sonstigen Funktionsräume wurden zum fokussierten Lernen zur ruhigeren Seite hin orientiert. Durch die unterschiedlich großen und unterschiedlich gesetzten Fenster gelangt Tageslicht tief ins Innere der Räume und trägt zum Wohlfühleffekt bei.
Innovation
Die architektonische Gestaltung zeigt eine innovative Herangehensweise an Schulbauprojekte. Durch die Konstruktion in moderner Holzsystembauweise mit einem hohen Vorfertigungsgrad wird Innovation nicht nur als Schlagwort, sondern als integraler Bestandteil des Entwurfs umgesetzt.
Sozialer Mehrwert
Der soziale Mehrwert manifestiert sich in der Schaffung von Gemeinschaftsbereichen innen und außen, informellen Lernbereichen und einer modernen Schulmensa. Diese Räume sind nicht nur funktional, sondern dienen als Treffpunkte und Kommunikationsorte für Schüler*innen und Lehrer*innen, fördern soziale Interaktion und schaffen eine angenehme Lern- und Arbeitsumgebung. Durch seine niedrige Geschossigkeit und die geneigten Dächer ordnen sich die Neubauvolumen in die umgebende Bebauung ein. Die Erweiterung der Schulaußenflächen bis an die Straße bringt die Schule sprichwörtlich näher an die Nachbarschaft heran. Der überdachte Vorplatz ist nicht nur Witterungsschutz, sondern Aufenthaltsort.
Nachhaltigkeit und Energieeffizienz
Die frühe Entscheidung für die Holzsystembauweise unterstreicht nicht nur die nachhaltige Ausrichtung des Projekts, sondern ermöglicht auch eine zügige Bauabwicklung. Die Anlehnung der Gebäudehülle an Passivhausstandards plus eine Lüftungstechnik mit Wärmerückgewinnung, die Nutzung von nachhaltig erzeugter städtischer Fernwärme und die intensiv begrünten geneigten Dächer komplettieren den Nachhaltigkeitsgedanken in den Bereichen Energieeffizienz, Wassermanagement, Biodiversität und Mikroklima.
Baumaßnahme im laufenden Betrieb: Die Umsetzung im laufenden Schulbetrieb in mehreren kleinteiligen Abschnitten verdeutlicht das Bestreben von Sehw Architektur, nicht nur architektonische, sondern auch organisatorische Herausforderungen zu bewältigen. Ein entsprechend komplexes Baustellenkonzept sorgt dafür, dass mögliche Störungen für Schüler*innen und Lehrer*innen minimiert werden, Gefahren ausgeschlossen werden können und trotz Baubetriebs immer genug Freiflächen für die Pausen vorhanden sind. Schaustelle gratis inbegriffen!
Das klimafreundlichste Haus ist bekanntlich das, welches bereits gebaut ist. Sehw mag Bestandsgebäude, das Weiterbauen, Sanieren und Reanimieren – seit über 25 Jahren. Angetrieben werden die Sehw Architekt*innen dabei von der Faszination für das Weitererzählen der Geschichten, das Neu-Denken der Raumzusammenhänge und Aufdecken und Freilegen von Qualitäten des Bestands. Und während der Bau des klimafreundlichen Gebäudes, der Andreas-Grundschule, fortschreitet, wird jedes Bauteil, jeder Raum, jeder einzelne Bauabschnitt zu einem Teil dieser Erzählung, einer Erzählung von Bildung, Gemeinschaft, zeitgemäßer und dabei zeitloser Architektur.
- Year
- 2023
- Project Status
- Under Construction
- Client
- Stadt Essen
- Team
- Karoline Hietzschold, Christoph Kolb, Urs Bankmann, Eun Kyoung Song, Florent Le Corre, Koert op den Brouw, Till Brasche, Andrea Varel
























