Plus House

Photo © Saurabh Pandey

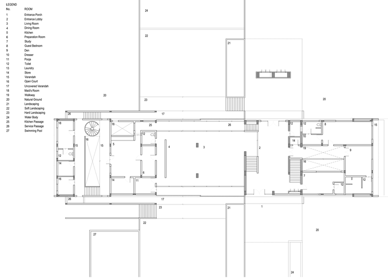
This is a house on the outskirts of Delhi for a couple and their 2 year old son. The special volume of the building is simply arranged, with the entire public and entertainment area located on the ground floor, and the entire private family space on the first floor. The building follows stacked cross - plan, where the private volume of the first floor cantilevers off the ground floor at a right angle. Two the south as the building is located the spa of the building which is a 6000 sq ft. structure with all the spa facilities, as well as an additional guest room and dining - drawing facilities.

Photo © Saurabh Pandey
Photo © Saurabh Pandey
Visualization © RKDS
Visualization © RKDS
Drawing © RKDS
Year
2009

Other Projects by Romi Khosla Design Studios 

Children's Playground
Gurgaon, India
Stratford Kiosk (Competition Entry)
London, Great Britain
Volvo Eicher Headquarter
Gurgaon, India
Dental College
New Delhi, India
Polyclinic for the Destitute
Delhi, India