Guessing School Campus
Designer with responsibility for all design services
Start of planning: 2021
Start of construction: 2022
Completion: 2024
Site area: 4.958 m²
Usable floor area: 2.847 m²
Gross floor area: 4.537 m²
Gross volume: 21.589 m³
Güssing school campus - Explanatory text
Light – Air – Sun … and … Güssing Castle provide the initial parameters, as it were, for the development of the VS+ASO+ZMS (elementary school + general special school + bilingual middle school) campus at the centre of the extensive complex of school buildings and sports facilities along Schulstraße.
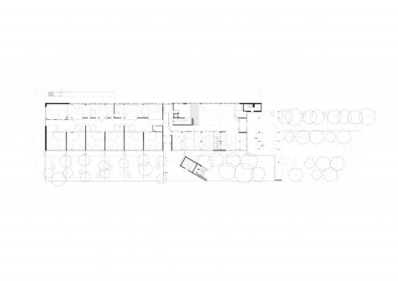
In urban planning and architectural terms, the “sporty” shape of the site calls for a rationally organised building in order to provide the spaces called for in the schedule of accommodation as well as the qualities expected.
First of all, sufficient open space was to be left to provide areas where the pupils can move around freely. In response to the narrow shape of the site the building was conceived as an elongated, stepped three-storey volume.
This generates several advantages:
• An appropriate distance to the NMS is achieved
• Along the entire length of the site sunny, south-facing outdoor spaces are created – in the form of “front gardens” to the individual ASO classrooms or the schoolyard.
• By stepping the functional levels generously sized terraces are created in front of the main teaching spaces. These can be used during school breaks, but also for giving lessons outdoors. This applies to all three levels of the building.
• Through the generously dimensioned openings along the entire south facade the building is clearly oriented towards the centre of the town, with the castle as a reference point.
• The main teaching spaces face south towards the quiet road that leads to the tennis courts and not towards the rather “loud” and busy Schulstraße
• All the main teaching spaces have the same kind of lighting conditions, consequently a sunny east side versus a dark west side for morning lessons is avoided.
Along with its forecourt the narrow end of the building facing Schulstraße defines a clear access situation: here there are waiting zones protected from inclement weather, where bikes can be parked. This area can also be seen as a threshold to the carparking areas.
The architectural design of this end of the building produces a clear address for the building and makes an inviting gesture with its projecting canopy roof.
Despite the building’s longitudinal organisation, the various areas are clearly zoned: the units, each of which stands on its own, are easily grasped and, to an extent, function autonomously, while still forming a compact system.
The ASO (general special school) is laid out in the western half of the building at ground floor level, the entrance and common area of the VS and ZMS and the day care area are in the eastern half, facing Schulstraße. On the first floor, the south-facing special teaching spaces are located in the western half, as are the rooms for the school administration and the teaching staff, which face north, as well as the gymnasium at the end of the building. The rooms for the ZMS are in the eastern half of the building and can be reached directly via the main entrance zone. The second floor is occupied entirely by two similar class clusters with teaching and outdoor spaces. Here, too, large terraces – some with a pergola – are envisaged.
Access to the ASO with its own draught lobby is along the circulation “street” and – in accordance with the requirements of the educational concept – is moved away from the main VS/ZMS entrance, so as not to distract the children excessively. Nevertheless, after entering the building you can take a direct and short route to the central Aula (assembly hall).
This Aula is an open space for life and action, conceived for the programs that accompany the teaching: these include day care facilities as well as various events. The leisure spaces are directly integrated in the Aula area – although they can be separated –together with the seating steps they form a generously dimensioned zone for a wide variety of activities. The library, an important part of the overall educational concept, is also integrated here and stimulates a playful approach to reading. The seating steps can also be used as an auditorium for the nearby ZMS or, conversely, as a stage for performances.
From the seating steps a generous open staircase develops through all the levels of the building. Naturally, a lift to provide barrier-free access is included. To ensure the necessary escape routes there are additional staircases – a closed staircase hall and several outdoor stairs.
The building is rationally conceived, not only in terms of organisation but also with regard to the construction and building method. The main loadbearing elements follow the classroom grid through all levels, in this way achieving an efficient layout of piers, walls slabs and floor slabs. To achieve the requisite storage mass a massive construction method is used for the building, with wood being used for the secondary building parts and for surfaces to achieve tactile and atmospheric spatial qualities.
Apart from the exception represented by the openings of the Aula to outdoor space, the north-facing facade has an economical amount of glazing and is highly efficiently insulated. The south facades are glazed generously, but not completely: parapets are made as wooden seats. The widely projecting canopies on all levels provide protection from the sun along with a green “veil” to the facade that is intended to produce a good micro-climate. In the area of the visual horizon external blinds that can direct light are envisaged for part of the glazing. In addition, at ground floor level numerous trees are planned, which will provide shade, while in winter allowing sufficient light to enter the teaching spaces. These proposals follow a calculated logic in the interplay between the competition organiser’s economic and ecological requirements.
Essentially, the building was developed according to the specifications of the room and floor space program and therefore has a well-functioning autonomy. As regards possibilities of connecting to the NMS different concepts – dependant on the budget available – are proposed and are depicted in diagrams:
• The extension of the canopy roof to the entrance area to the NMS
• At the western end of the building a covered approach to the sports rooms of the NMS and to the activity park
• A bridge building on the upper floors, directly beside the gymnasium, which spans the access road.
The open space related to the school represents a carefully articulated and organised area, which can integrate and organise all relevant functions. On the axis of the main entrance an elongated space is made that establishes a clear visual relationship for those arriving and, with its benches, forms a front area, a space to wait in and where people can be collected. The carpark, separated
by a long bench seat, is nearby. The parking spaces are paved with grass pavers and all of them have a generous width of three metres, allowing a flexible distribution of the newly planted trees and the car parking spaces for disabled persons. To achieve a balance between the entrance area and the carpark it is proposed that the southernmost row of parking spaces should be accessed from the nearby southern road. An adequate number of bike stands are placed under a roof, close to the entrance.
The schoolyard takes up the clear idiom used in the entrance area. In front of the special school there are outdoor areas, separated by luxuriant planting, allocated to each of the classrooms. A separate entrance for this school type opens towards the south, ensuring safe arrivals. The school yard for the primary school extends through three storeys. On the ground floor the design approach used in the special school is continued. A staircase, flanked by planting on the façade of the building that also provides a visual screen for the special school, leads to the first floor. Planters with ornamental grasses divide up the terrace and continue the green design theme. On the second floor there is, additionally, a larger planting bed that provides a garden area that can be used for instructional purposes.
LIGHT – AIR – SUN – the CASTLE … and greenery in front of the windows
… a new identity for Güssing VS+ASO+ZMS school campus!
- Year
- 2024
- Project Status
- Built
- Client
- PEB Projektentwicklung Burgenland GmbH
- Team
- Structural design: Woschitz Engineering ZT GmbH, Oberwart MEP: Woschitz Engineering ZT GmbH, Oberwart Building physics: RWT plus ZT GmbH, Vienna Landscape planning: lindle+bukor – atelier für landschaft, Vienna Construction supervision: Ingenieurbüro Puffing, Graz Construction supervision (electrical planning): TB Ing. Michael Urschler GmbH
























