Schulerweiterung Meierhof
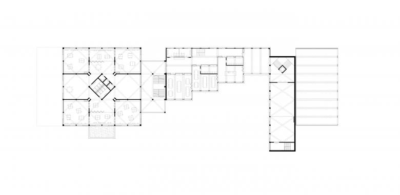
Das Gebäudeensemble der Schulanlage Meierhof wird als Wettbewerbsvorschlag westlich ergänzt durch einen offenen Erschliessungstrakt und einen kompakten Neubau. Die Volumetrie nimmt die charakteristische Staffelung des Bestandes auf, und führt die horizontale Bänderung in der Fassade fort für ein einheitliches Erscheinungsbild. Östlich wird der Bestand mit einem Aulatrakt ergänzt, welcher direkt an die Turnhalle anschliesst. Dieser Eingriff wertet den Pausenplatz auf und gibt Quartiernutzungen Präsenz und Identifikation. Das dreigeschossige neue Schulhaus überzeugt mit seinem offenen Raumkonzept mit flexiblen Lernbereichen, welche Eigenständigkeit und Austausch fördern. Die statische Struktur mit den charakteristischen Doppelstützen und einem Achsraster von 3 Metern verbindet Alt und Neu. Durch das Abdrehen des orthogonalen Systems erzeugen wir eine eigene Identität mit einer sinnlichen Anmutung. Eine ressourcenschonende Bauweise mit Holz und Lehm, und eine Low-Tech-Lüftung senken den Energieverbrauch und schaffen eine zukunftsfähige Lernumgebung.
- Year
- 2025











