Einfamilienhaus Waldriedstrasse

Photo © Rob Lewis
Photo © Rob Lewis
Photo © Rob Lewis
Photo © Rob Lewis
Photo © Rob Lewis
Photo © Rob Lewis
Photo © Rob Lewis
Photo © Rob Lewis
Photo © Rob Lewis
Photo © Rob Lewis
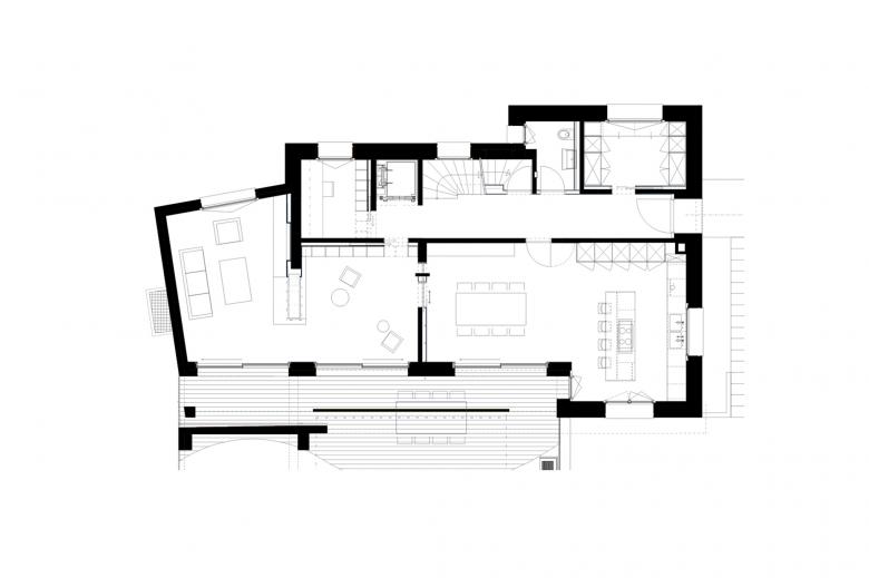
Drawing © marazzi+paul architekten ag
Drawing © marazzi+paul architekten ag
Year
2016
Team
Alfred Paul, Renato Marazzi, Patrick Ryser, Simon Lenz, Virna Lanz, Fatima Lahmami
Zusammenarbeit mit
Rychener Zeltner Architekten ag
Fachplaner
plandesign pd gmbh
EBING Bauingenieur GmbH
fux&sarbach Engineering AG

Other Projects by Marazzi + Paul Architektur AG 

Sonnenarena
Langnau im Emmental, Switzerland
Privera Hauptsitz
Gümligen, Switzerland
Mieterausbau On AG, Hardturmstrasse
Zürich, Switzerland
EFH Nuoelen Seeblick
Wangen SZ, Switzerland
Mehrfamilienhäuser Lerchenweg 6/8
Muri bei Bern, Switzerland