Schulanlage Saatlen

Zürich
Ecke Saatlenstrasse - Tramstrasse

.

Pausenplatz
Foyer Sportanlage - Mensa - Mehrzweckraum
Bewegungszone SKB
Stadtplan
Strukturmodell
Situation
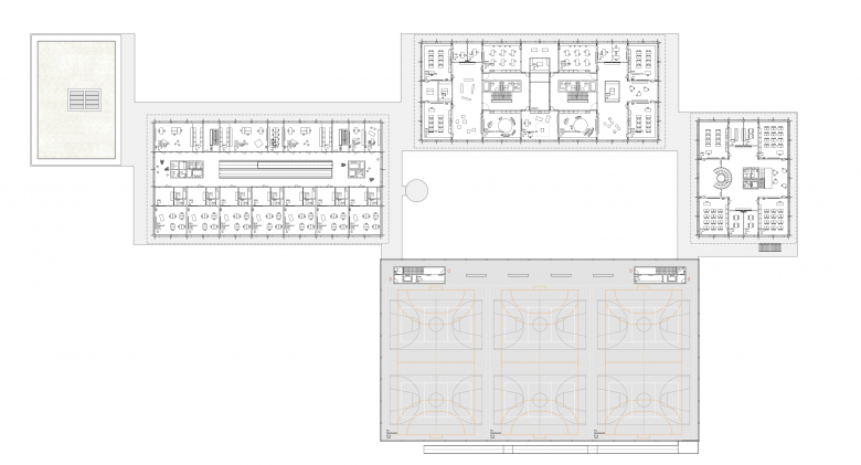
Erdgeschoss
1. Obergeschoss
2. Obergeschoss
Ansicht SEK - Schnitt PRIM - Ansicht SKB - Schnitt KDG
Ansicht KDG - Schnitt SKB - Schnitt Schwimbad - Ansicht PRIM - Schnitt SEK
Schnitt Turnhalle - Pausenplatz - Primarschule
Konstruktion
Year
2020
Team
Landschaft: Claudia Wolfsenberger

Other Projects by Leuppi & Schafroth Architekten 

Langsamverkehrsbrücke
Bern-Wankdorf, Switzerland
Multifamily House Haldenstrasse
Zurich, Switzerland
Rhine Falls Visitor Center
Laufen-Uhwiesen, Switzerland
Limmat Footbridge and Promenade Lift
Baden / Ennetbaden, Switzerland
Extension Rychenberg Grammar School
Winterthur, Switzerland