Housing Development A-Park
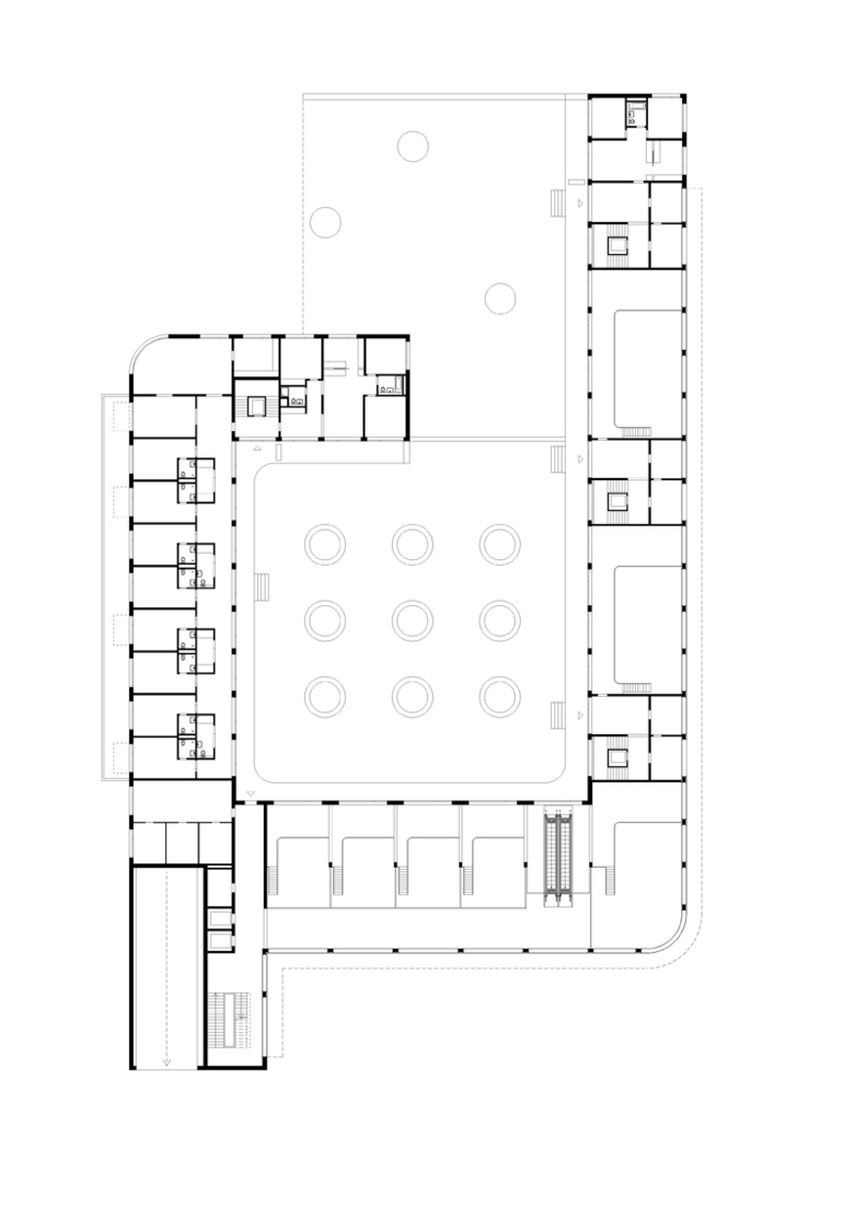
Ein aufgeschnürter Hofrand mit zwei freien Armen verankert sich städtebaulich an der Baulinie entlang der Albisriederstrasse und entwickelt sich nach Norden. Die beiden freien Enden öffnen sich asymmetrisch, um mit dem Umfeld der alten Mühle einen übergreifenden Freiraum zu bilden, der sich als Freihaltezone bis weit in den Norden erstreckt. Die ganze Gebäudeanlage versteht sich damit auch als Termination des Freiraumgürtels gegenüber dem neuen Zentrum in Albisrieden.
Alle Adressen für die Bewohner, für das Ladenzentrum wie auch für die verschiedenen öffentlichen Nutzungen werden an der Albisriederstrasse oder am Bachwiesenweg positioniert. Diesen beiden publikumsintensiven Gebäudefassaden wird darum eine besondere städtebauliche Präsenz zugewiesen. Ein überhöhtes Erdgeschoss erlaubt die Einschiebung eines Mezzanins für die Läden wie auch für den Kindergarten und den Kinderhort. Diese strassenseitige Zweigeschossigkeit ermöglicht, den ruhigen Innenhof der hochliegenden Wohnbebauung visuell wahrzunehmen.
Das Wohnungsangebot erstreckt sich über drei Geschosse, wobei im Mezzanin die Pflegegruppe einen eigenen Flügel belegen. Die 2 1/2-Zimmerwohnungen durchqueren den an den Ladenplatz angrenzenden Baukörper, womit diese nebst einer guten Südbesonnung auch einen lauschigen Laubenbalkon besitzen. Diesen Hof- und Stadtanschluss ist typisch für alle Wohnungen. Die Laubengang- und die Zweispännertypen bieten bei gleicher Grundkonfiguration aber sehr verschiedene Wohnformen an.
Auftragsart
Projektwettbewerb im selektiven Verfahren
Visualisierungen
Leuppi Schafroth Architekten
Veranstalter
Amt für Hochbauten Stadt Zürich / Baugenossenschaft Zurlinden
- Year
- 2003
- Project Status
- Under Construction



