Hotel Park und Seeallee
Die Seeallee auf der tektonischen Kuppe zwischen Kirchplatz und Dorfeinfahrt wird zur Lebensader des kultivierten „Seminar“-Tourismus. Die Reduktion respektive die Befreiung vom motorisierten Verkehr erlauben eine radikale Neuinterpretation dieser Wegachse hin zu einer breiten raumverbindenden Promenade durch den offenen Landschaftspark.
Heute wird die Seeallee eher als eine trennende und begrenzende Quartierstrasse wahrgenommen. Mit dem Aus- und Freiräumen von allen nicht notwendigen Einbauten sowie der „Renaturierung“ durch Aufbrechens des Bodenbelages mittels eines grobmassstäblichen Kopfsteinpflasters wird der Strassenraum dem Parkraum zugeschlagen und verbindet mit seiner neuen Präsenz die beiden flankierenden Grünräume zu einem grösseren Ganzen.
Der südwestlich zur Poststrasse abfallende Park und die nordöstlich gelegenen drei Areale des Hotel Heidens, des Dunant-Platzes sowie dem künftig halbprivaten Park des Hauses „Fernsicht“, werden gegenüber der Seeallee weitgehend geöffnet.
Das Parkieren auf der Seeallee während Grossanlässen erfolgt an den seitlichen Rändern der Promenade; die Marktstände hingegen besetzen die westliche Hälfte der Seeallee, damit auf der östlichen Hälfte alle Rettungsfahrzeuge die Liegenschaften im Osten erreichen können.
Im Normalfall wird die Seeallee für Anwohner, Hotelgäste und Lieferanten im Einbahnverkehr durchfahren.
Das neue Seminarhotel Park mit seiner dreigliedrigen kubischen Stapelung besetzt das nördlichste Feld des Parkes und setzt sich gleichzeitig satt an die Seeallee.
Das halböffentliche Sockelvolumen mit doppelgeschossiger Lobby und Seminarbereich nimmt mit seiner Höhe Mass am Kursaal und der Gebäude entlang der Seeallee. Die weite und tiefe Fassadenstruktur signalisiert Offenheit. Ebenso die speziell geformten Sonnenstoren, die die Ein- und Ausblicke auf individuelle Weise zulassen.
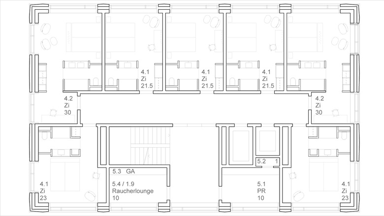
In einem leicht rückversetzten unterhobenen zweiten Volumen lässt sich auf sieben Geschossen aus 49 Hotelzimmern die Sicht in den Bodenseeraum, das Dorf Heiden und die Berge geniessen. Die Massierung des Bauvolumens in die Höhe verdrängt auf Parkebene weniger Raum und entspricht in der ortsbaulicher Körnung dem bisherigen Massstab.
Als kubischer Abschluss folgt zuoberst die halböffentliche Aussichtsbar. Auf Augenhöhe mit der Plattform des Kirchturms bleibt diese dennoch bewusst tiefer als die Kirchtturmspitze. So wie die Kirche den Kirchplatz dominiert, besetzt das Hotel Park die den Ortseingang, markiert den Beginn der Seeallee und spannt den Bogen über die Park hinweg zur Kirche.
- Year
- 2012
- Project Status
- Under Construction





