Dining Hall and Classrooms, Zurich Highlands Grammar School
In der Konzeption der Schulanlage von Max Ziegler ist der zentrale Freitreppen-Pausenplatz ein Ort des Ankommens, des Verweilens und der Vernetzung. Die neue Erweiterung im Südwesten verschiebt das städtebauliche und inhaltliche Gewicht innerhalb der gesamten Schulanlage zugunsten einer Aufwertung des Zugangbereiches. Trotzdem bleibt die wohlgeordnete Formation des bestehenden Ensembles mit Haupt-, Spezial- und Turnhallentrakt mit der zweigeschossigen Ergänzung des Mensatraktes im Gleichgewicht. Im Vordergrund unserer Entwurfsarbeit stand die Schaffung von stimmungsvollen Räumen, hergeleitet aus der Architektursprache der bestehenden Anlage.
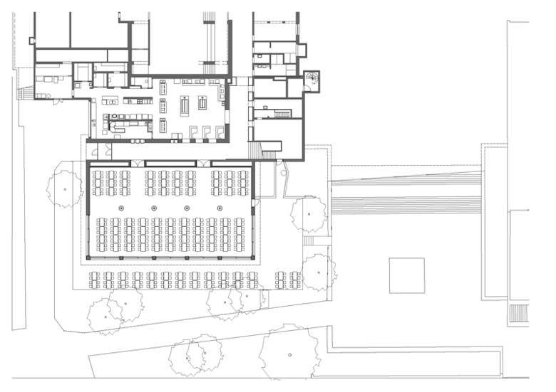
Der Mensatrakt vereinigt auf zwei Ebenen einen Unterrichtsbereich mit vier Klassenzimmern und einen Mensabereich mit Esssaal, Freeflow und Produktionsküche.
Die Materialisierung des neuen Bauvolumens entstand analog zum Bestand mit äusserer Betonschale und isolierter Innenverkleidung und folgt konsequent dem städtebaulichen Erweiterungskonzept.
Der Mensaraum ist das Herzstück der neuen Anlage. Die in jeder Hinsicht komplexen Anforderungen sind in eine Ruhe ausstrahlende Einfachheit eingearbeitet worden. Als akustisch dämpfendes Baumdach breitet sich geöltes Ulmenholz über Wände, Stützen und Decke zu einem textilartigen Geflecht aus. Raumhohe Hebeschiebfenster aus natureloxiertem Aluminium vermitteln zwischen Terrasse und Mensaraum. Der innere fugenlose und eingefärbte Fliessmörtelbelag findet im Aussenbereich als monolithischer Betonbelag seine Fortsetzung.
Auftragsart
Studienwettbewerb
1. Rang
Bauherrschaft
Baudirektion Kanton Zürich, Bildungsdirektion
Baudirektion Kanton Zürich, Hochbauamt
Fotograf
Mark Röthlisberger, Hochbauamt Kanton Zürich
- Year
- 2005
- Project Status
- Built







