Bürgerhaus in Barmbek

Lorichsstraße 28 A, Hamburg, Germany
Bestand und Neubau
Photo © Fotografie Dorfmüller | Klier

Das Bürgerhaus in Barmbek setzt schon heute mit dem denkmalgeschützten Gebäude von Fritz Schumacher einen wichtigen städtebaulichen und sozialen Akzent für den Stadtteil. Dem Entwurf für die Erweiterung des Bürgerhauses liegt daher ein wesentlicher Gedanke zugrunde: Respekt vor dem bestehenden Bürgerhaus, Respekt vor dem Entwurf Schumachers.

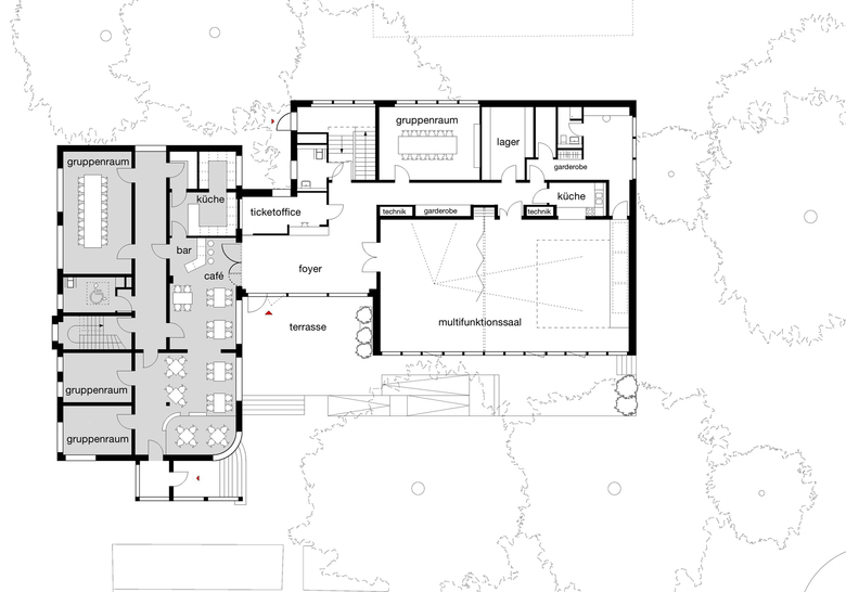
Die Erweiterung basiert folgerichtig auf dem Entwurfsansatz Schumachers, nämlich den Neubau in unterschiedlich proportionierte Baukörper zu gliedern, die der darin vorgesehenen Funktion folgen. Das Foyer wird weit zurückliegend angeordnet und an das historische Gebäude angeschlossen. Ein als Terrasse nutzbarer Eingangshof wird als Zone zwischen Alt- und Neubau angeordnet, sodass der neue Saal zwar freigestellt wird, sich gegenüber dem Bestand aber weiterhin zurückhält. Dabei wird die Hierarchie von Alt und Neu nie infrage gestellt, zusammen mit den Freiflächen entsteht ein ausgewogenes Ensemble von hoher räumlicher Qualität.

Die Terrassierung der Freiflächen bietet unabhängig voneinander nutzbare Bereiche, die in ihrer Größe auf die Nutzung als öffentliche (Eingangsterrasse) oder halböffentliche (Saalterrasse) Fläche reagieren.

Zum Respekt des denkmalgeschützten Gebäudes gehört neben der städtebaulichen Anordnung auch eine Zurückhaltung bei Eingriffen in den Bestand. Gegenüber der heutigen Situation wird lediglich die Küche in den Bereich des ehemaligen Waschraums verlegt, sodass die ursprünglichen Raumproportionen wieder erlebbar werden.

Eine zurückhaltende Fassadengestaltung mit Klinker als Hauptmaterial in Anlehnung an den Bestand prägt den Neubau. Entwurfsmotive des Bestands wie Stahlbetonstützen und Gesimse wurden neu interpretiert und finden in der klaren und sachlichen Fassade ihren Ausdruck. Durch die geschosshoch verglaste Fassade nach Westen wird eine eigenständige Gestaltung erreicht, die als Ergänzung der Schumacherschen Architektur verstanden wird. Auf diese Weise erhält das neue Bürgerhaus Barmbek mit der Erweiterung eine neue Identität, die gleichzeitig die charakteristischen Bestandteile des Stadtbildes bewahrt.

Kenndaten:
Neu-/Anbau Bürgerhaus Barmbek (570 qm BGFa Neubau)
Bestandsgebäude: Fritz Schumacher (1930, Polizeiwache Hartzlohplatz)

Wettbewerb 2010: 1. Preis
BDA Hamburg Architektur Preis 2016: 3. Preis
German Design Award 2018: Winner

Planung: LPH 1-8 (2010-2014)
Realisierung: 2014/15

Photo © Fotografie Dorfmüller | Klier
Photo © Fotografie Dorfmüller | Klier
Photo © Fotografie Dorfmüller | Klier
Photo © Fotografie Dorfmüller | Klier
Photo © Fotografie Dorfmüller | Klier
Grundriss mit Bestand und Anbau
Drawing © KBNK Architekten GmbH
Schnitte
Drawing © KBNK Architekten GmbH
Photo © Fotografie Dorfmüller | Klier
Lageplan
Drawing © KBNK Architekten GmbH
Year
2014
Client
Bezirksamt Hamburg-Nord
Statik
Gladigau & Schmahlfeldt - Ingenieurpartnerschaft für Bauwesen, Bad Oldesloe
Haustechnik
ENERGIEHAUSINGENIEURE - Planungsges. für Gebäudetechnik / sineplan - Ingenieurbüro für Elektrotechnik und Gebäudeleittechnik, Ha
Brandschutz
IBP mbH - Ingenieurges. für Brandschutzplanung, Tornesch
Freiraum
Landschafts.Architektur Birgit Hammer, Berlin

Other Projects by KBNK Architekten 

Medienzentrum Lauenburg
Lauenburg/Elbe, Germany
ÜSQ - E3
Hamburg Hafencity, Germany
Hellerhöfe
Frankfurt am Main, Germany
Pergolenviertel BF 3B
Hamburg, Germany
Arbeiten im Grünen
Buxtehude