VoltAir
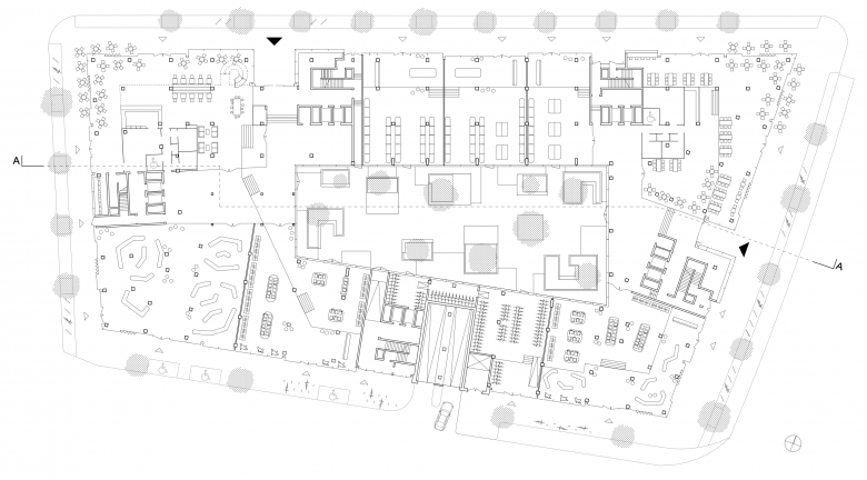
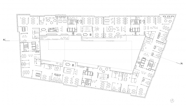
VoltAir is a pulsating urban building block for new office spaces at Alexanderplatz in the heart of Berlin. The appearance of the building is defined by stacked, two-story glass cubes, executed as a ventilated double facade.The horizontal setback between the facade boxes at the level of the adjacent S-Bahn viaduct, already defined in the competition design, connects the building with the cityscape. With room heights of 3 meters, building depths of up to 24 meters, exposed concrete and technical installations, the interior of the building exudes a loft-like character and reflects communicative and social connectivity. The floor plans can be horizontally divided and vertically connected, allowing for flexible adaptation to user needs.
Thanks to its holistic design and visibility in the urban space at one of Berlin's most bustling locations, VoltAir has become the new home for innovative companies such as N26, Biontech, TomTom, and Seven Senders.
- Year
- 2023
- Project Status
- Built
- Client
- Joint Venture von ABG Real Estate Group und Felix Gädeke
- Team
- Jürgen Mayer H., Hans Schneider, Marcus Blum, Paul Angelier, Lars Becker, Christoph Emenlauer, Antje Kalus, Mael Kang, Simon Kassner, Elina Kolarova, Mehrdad Mashaie, Julien Sarale, Jonas Wenzke, Michael Wiener
















