Infinity Housing

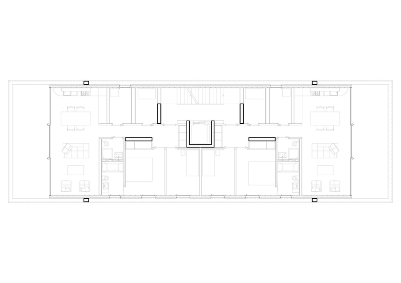
Housing Infinity is located in Locarno, one of the main cities of the region Ticino, Switzerland. The project is inserted in a small piece of land (600 m2) of a high density residential area. The surrounding constructions have no architectural qualities and the district lacks in its own identity.

The project takes roots into the historical conception of the modernist urban buildings from this part of Europe as well as the structural references from Masters from Ticino such as Livio Vacchini.

The structural envelope is exposed and reveal its truth face. The façade is the structure.

The rest is not part of the structural component and is made by a light structure walls cladded in glass-resin which reflects the surroundings buildings. This way the exterior is mirrored into the new building in order to elevate them and give them a new aurea.

Project Status
Under Construction

Other Projects by Inches Geleta 

Care Home
Losone, Switzerland
Palazzo Pioda
Locarno, Switzerland
MeCrì Museum
Minusio, Switzerland
Desgraz House
Solduno, Switzerland
Pallone House
Claro, Switzerland