«Medio in Ponte» Gemeindehaus
Projektwettbewerb, 2.Rang
Das Konzept basiert auf einer volumetrischen, wie auch erschliessungstechnischen Entflechtung. Mit einem flach gehaltenen und vom Bestand abgesetzten Neubau wird das „Volumen- Konglomerat“ aus verschieden Bauepochen städtebaulich beruhigt.
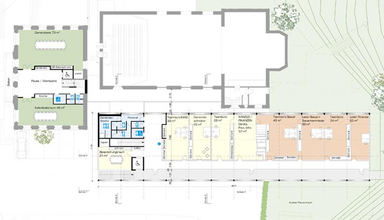
Der Neubau ist als funktionales Passstück konzipiert, welches die Räumlichkeiten der Tageszone effizient auf einem Geschoss organisiert, die gedeckte Anlieferung der Bühne und des Caterings sicherstellt, und den Wander- /Kirchenweg attraktiv über eine Passerelle führt. Der durch den Neubau generierte, gedeckte Aussenraum soll nebst der Anlieferung auch als Marktplatz dienen.
Mit möglichst wenig baulichen Eingriffen werden die Räumlichkeiten der Nachtzone, wie auch die Vereinsräumlichkeiten im bestehenden Gasthof Löwen organisiert.Der vorgeschlagene Neubau soll nebst der städtebaulichen Klärung, auch das bestehende Ensemble qualitätvoll weiterbauen, indem es die geschichtliche Eigenart, der Kombination von Stilelementen verschiedener Epochen aufnimmt und in einer darauf bezugnehmenden und abgestimmten Formensprache reagiert. Der Neubau ist als Elementbau konzipiert. Die vorfabrizierten Betonelemente der Bogenstützen, wie auch der Betondecken und deren Unterzüge sind repetitiv.
Im Sinne der Einheitlichkeit soll die Materialisierung des Neubaus dem muralen Charakter des Gasthof Löwen entsprechen. Obwohl die Erstellung der beiden Bauten rund 160 Jahre auseinander liegt, soll sowohl die Formensprache, wie auch die Materialisierung von einem dialogisierenden Charakter zeugen.
- Year
- 2014
- Project Status
- Design







