Österlen Farm House

Photo © Åke E:son Lindman

Grams Gård was built in 1851 and used as a farm until the 1980s by the Gram family. It is located in Österlen in Skåne. The farm is located on top of a small hill overlooking the sea; towards Hanö Bay beyond Simrishamn in the north and Bornholm is clearly visible to the south. In the west there are beautiful fields and Gladsax appears on the horizon.

The farm consists of three volumes, which form a courtyard with cobblestones, where the old pump and a large chestnut tree stand. This project of refurbishment has been designed combining tradition and innovation and with a strong material feeling. Black traditional roofing, white stone walls and some of the old windows preserved meet large window openings, oak, stone and concrete floors. The light flows from all directions with views to the garden and fields, the rooflights illuminate and warm the rooms in the upper floor and three large dormer windows open onto the landscape.

Photo © Åke E:son Lindman
Photo © Åke E:son Lindman
Photo © Åke E:son Lindman
Photo © Åke E:son Lindman
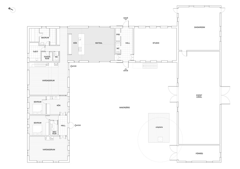
Plan Ground Floor
Drawing © Dive Architects
Photo © Åke E:son Lindman
Photo © Åke E:son Lindman
Photo © Åke E:son Lindman
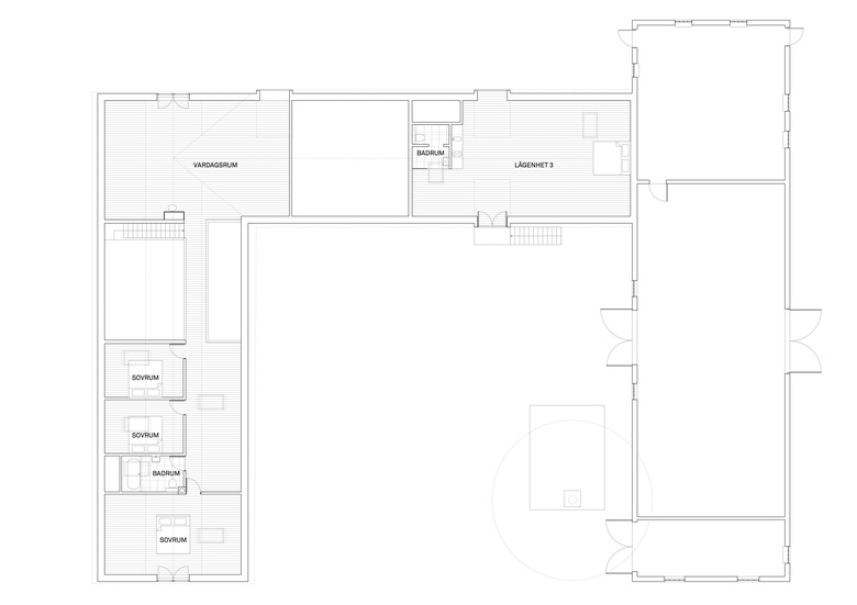
Plan First Floor
Drawing © Dive Architects
Photo © Åke E:son Lindman
Photo © Åke E:son Lindman
Photo © Åke E:son Lindman
Year
2018
Client
Private
Team
Andy Nettleton, Ia Hjärre, Valentino Barbu, Ana Riesco
Structural Engineer
SG Svensson AB
Main Contractor
Thage Bygg

Other Projects by Dive Architects 

British Council Khartoum
Khartoum, Sudan
Breeze Yoga
London, Great Britain
Dalarna House
Viksö, Sweden
Gärsnäs
Gärsnäs, Sweden
Mews House
London, Great Britain