Studio Moliere and extension of the Lycée Français
Extension of the Lycée Français de Vienne and renovation of the Studio Molière
Introduction
The "theatre's" particular cultural function, location and organisation in a historical building and the identity of the new school building are central to the project.
"Contrasts attract each other"
The attempt, in the 19th century, to open up the old riding school, is reflected in the new school building. It is reused and adapted in a contemporary current way. This use of contrasts - with different technologies, construction methods, materials and energy technologies - is also expressed through the reflection of the old building on the façade of the new school. This effect is reversed as soon as it gets dark, when the school building illuminates the old studio.
Studio Molière
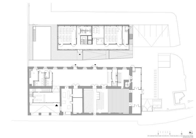
Central functions such as the entrance, reception and the bookstore, are located on the Liechtensteinstrasse side, beside and under the room, and thus clearly pointing towards the public space. The new reception area is set back from the alignment of the buildings and "inserted" in the building volume to provide the visitor with an initial view in a covered courtyard space. It is an area where people stay and wait. By removing the two existing ceilings, this space acquires a generosity that already informs the visitor of the specific function.
After going through the reception area, the visitor finds the same generosity in the lobby as announced in the building's configuration. The space is opened up to just under the roof, and the windows and their large exposed pointed arches flood the lobby with light during the day, especially in the afternoon and the evening before the start of performances. The 7.80 m high space also announces the room which is located behind. It is also a passage which provides access to the new school building and then to the old school building.
The room whose structural and material design remains unchanged for economic reasons ends this sequence of generous spaces and gradually leads into the intimacy of the theatre space.
Work in the existing room
The level of the backstage is adapted to that of the stage. The service rooms (catering room, backstage, room for storing technical equipment and scenery) are located in the immediate proximity of the lobby. The stage control room with the lighting and technical control room are accessed from the reception area near the entrance. The required service facilities (ventilation, toilet facilities, heating, electricity, sound system) have been renovated and upgraded to standards.
A buffet in the lobby may be fitted out with a mobile bar via the "catering" room.
The toilet facilities for visitors to the theatre remain in the same place. The reorganisation of the toilet facilities conceals from visitors the accesses to the existing heating room in the basement and to the ventilation plant located above.
A new staircase connects the lodges of the upper floor to the stage and to the backstage.
The caretaker's apartment is provided for in the attic, which will thus be partly fitted up. The through-room is also located here. Access to these two spaces is via the new staircase.
Construction
Given the structural adjustments made during the scheduled work, the useful areas of the building are reduced. The restoring of the intermediate ceiling at the level of the new lobby and the two existing ceilings in the entrance area thus reduces the loads that have to be withstood by the existing load-bearing structure. It is therefore feasible with no significant additional construction. The entire primary structure lowering the load is maintained in its function.
The construction measures going beyond demolition secure and increase the load-bearing capability of the existing structure.
The changing of the log ceiling at the level of the guttering into a mixed wood and reinforced concrete ceiling, increases the building's spatial rigidity and provides the required fire protection.
If necessary, reinforced concrete gratings will be incorporated at the level of the existing ceilings to secure some masonry pillars.
In the space of the new apartment in the building attic, steel frames replace the existing trusses (of the structure). Through a simultaneous action with the mixed ceilings, these frames allow the removal of the cross beams. The structural steelwork between the frames, in the apartment's exterior walls, reduces the deflection of the mixed ceilings.
Service facilities
In the context of the measures relating to new constructions, the ceiling under the roof is thermally optimised by applying insulation elements on the rafters. The insulation can be reused if the attic is subsequently fitted up as a sloping roof.
Wherever possible, the constructions of the historical windows will be restored and sealed. New glass doors (entrance, bookstore) are to be provided with an insulating double glazing. The scene entrance is also provided with a new thermal insulation steel door.
The existing heating is connected and fitted out for district heating. The transfer station could be located in the area of the current heating room in the basement, and the new building will be connected via this space to a buried pipe.
The heating method in the reception hall and public space remains almost unchanged; only a few adjustments will be necessary.
The reception area, the bookstore and the caretaker's apartment will be provided with underfloor heating.
The other service rooms will be heated with convectors.
The new ventilation plant is located in the attic and supplies the Studio Molière representation hall using source air outlets located in the sloping ceiling, with fresh air quantities of 30m3/h/person, in accordance with the standards, and a heating recovery rate of about 90%. The wet rooms are also ventilated mechanically.
From the point of view of the scenographic technique, the Studio Molière will be upgraded to standards, i.e. provided with new lighting techniques, loudspeakers and media. Acoustics are optimised by adding elements of acoustic comfort.
The school
Respecting the Studio building and its façade, the new school building is located to the southwest, set back to provide a new free space.
Its façade reflects the Studio's historical façade, lending the place its specific character. This characteristic is emphasised by the building's orientation and the functions it houses, by the reduced detail of the construction of its façade and by the luminous staging of this sunset atmosphere.
The school is organised in a clear east-west facing building. The horizontal access to classrooms faces the Studio building and allows students to see it at different levels. The entrance is located directly in front of the existing Studio Molière exit.
The exam room and the service rooms reserved for deliveries and evacuations are located to the north of the ground floor. An internal staircase interconnects these spaces. The toilet facilities are discreetly located behind the main vertical access in the direction of the various floors.
On the first floor there are 2 standard rooms and a depot. Near the main staircase is a relaxation area with a small outdoor loggia.
The second floor houses 3 standard rooms and a depot.
The plant room and the general room of the archives are located in the basement.
Construction
The new building is designed as a reinforced concrete building, with flat ceilings laid on shotcrete pillars and the reinforced concrete walls at the level of the vertical accesses.
The building is supported on two levels: one on the southwest outer wall and the other in the separation wall between the corridor and the classrooms. The corridors are designed as protruding ceilings.
The foundations will be based on a footing in accordance with a future assessment.
Façade
The façade is designed as a curtain wall.
The classroom façade panels and service rooms are aluminium sandwich panels provided with sun protection textile blinds with automatic and manual control.
The east façade is a glass façade with aluminium sandwich panels included as openings contributing to the global thermal balance.
The staircase volume on the north façade is clad with a textile screen.
Fire protection
The project was designed according to the requirements of the OIB or TRVB N 130 directive.
According to the OIB 2 directive, the building in question is classified as category 3 (leakage level 6.80 m).
The building is divided into fire-barrier areas of less than 1,600 m2 to prevent any vertical spreading of fire inside these areas (glazing over the entire height of the room, opening windows).
The following areas must be built as fire-barrier subspaces: archives rooms (basement), plants rooms (basements), refuse bin room, etc.
The following service facilities are mandatory: stairwell - smoke extraction (5% of the plan area), guidance lighting of emergency exits.
The exits looking onto the adjacent land are located on the ground floor (direct exits). Maximum length of emergency exits: 40 m to the adjacent land or to a secured stairwell (2nd emergency exit). Two emergency stairwells allow the evacuation of the upper floors.
The maximum number of people on the upper floors 1 and 2 and on the raised floor is 270 people. The two secured emergency stairwells have a minimum clearance of 1.50 m and 1.20 m respectively.
The widths of the corridors are sized in accordance with the maximum number of people.
The construction of the service ducts is provided for in REI 90.
Service facilities
The new wing with the classrooms is designed as a low heat consumption building in accordance with standard practices. The average U values of windows (triple glazing) is 0.7 W/m2 K, and those of the exterior walls and roof, 0.2 W/m2K.
Rooms are provided with underfloor heating. The classrooms are mechanically ventilated using components supplying fresh air into the classrooms, with stale air being evacuated to the corridor through soundproofed ventilation grilles. From there, the air passes freely into the corridor towards the fans. These fans are also provided with a heat recovery and maximum humidity system (enthalpy wheel). Ventilation and lighting systems are controlled and operated by presence sensors. Specific energy consumptions of 22 kWh/m2/a are thus expected.
For the toilet facilities, water, waste water and energy are saved by using low water consumption taps and waterless urinals.
In the new building, the service facilities are designed in accordance with the client's wishes and standard practices. Lighting uses low consumption, efficient LED bulbs.
On the new building's unshaded roof, solar collectors for hot water and supplementary heating (using the foundation footing as a ground collector) can also be optionally installed.
Another option: Photovoltaic panels generating electricity, for future vehicles for example
Competition 05 | 2012
Start of planning 09 | 2012
Start of Construction 02 | 2015
Surface 3 591 m² (1 031 m² of renovation)
Hall Studio Molière 240 places
- Year
- 2016
- Project Status
- Built
- Client
- Agence pour l'enseignement français à l'étranger - Lycée Français de Vienne











