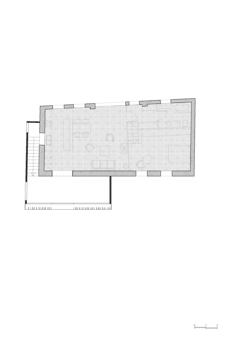
Escalera Umbral
Connect the house with the lower floor, that was the initial corder.
We placed the staircase outside the house, open to the landscape vieurs, and enlarged its landing to tur nit into an entrance gallery. A threshold that transforms the way of accessing the house. It has no definite use but the opportunities seem multiple ... it may be the makeshift office during the pandemic, or a place where the children build a scalextric. Someone can practice yoga with the morning sun or be the meeting place for family members.
The lightness contrasts to the existing massif. The warm interior light welcomes you. The landscape floods the interior space, filtered by slats or framed in the staircase, so when you go up or down, the vision is distracted.
- Year
- 2020
- Project Status
- Built
- Calculist
- Manuel arguijo
- Carpenter
- Segi Martinez





