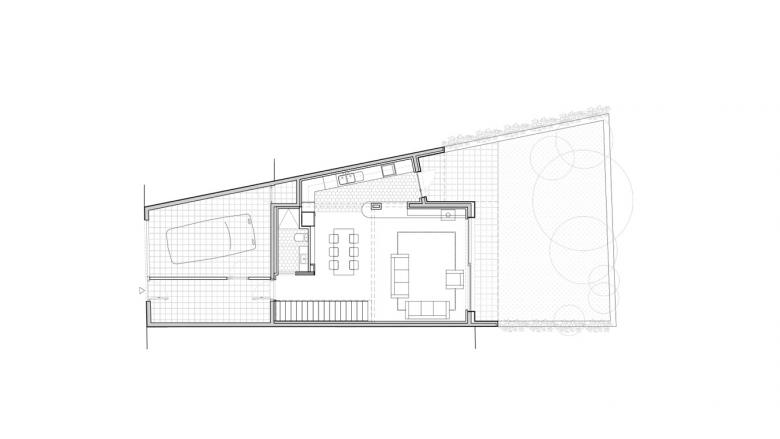
Wooden efficient singlehouse
Housing Building in existing old Argentona neighbourhood. Contains a 3 floors dwelling and a courtyard. Built entirely in wood with sustainability and low cost criteria design
- Year
- 2019
- Project Status
- Built
- Team
- Lucia Millet, Rafa Gil, ABHaus






















