Claremont McKenna College Robert Day Sciences Center

Claremont McKenna College, Claremont, CA, USA
Photo © Laurian Ghinitoiu

The new Robert Day Sciences Center at Claremont McKenna College maximizes multidisciplinary integration and interaction: each level of the 135,000-sq-ft building is oriented in a different direction, channeling the flow of people and ideas between the labs, classrooms, and the surrounding campus.

Commissioned in 2020, the Robert Day Sciences Center serves a community of 1,400 students. The center is BIG’s first built project in Los Angeles, and the first completed building in the BIG-designed masterplan for CMC’s Roberts Campus, which envisions a more unified campus shaped by a series of buildings that extend the central mall and adjacent sports bowl currently under construction. Collaborators on the Sciences Center include Saiful Bouquet as Structural Engineer, KPRS Construction as General Contractor, and IDS Real Estate Group as Construction Manager.

With views of Mount Baldy, the Robert Day Sciences Center is positioned on the eastern edge of campus at the corner of Ninth Street and Claremont Boulevard – creating a new gateway to the school and strategically facilitating strong connections to other academic departments. A dramatic 15-ft hovering canopy welcomes students, professors, staff, and visitors, drawing them into a sky-lit multilevel atrium buzzing with life and movement.

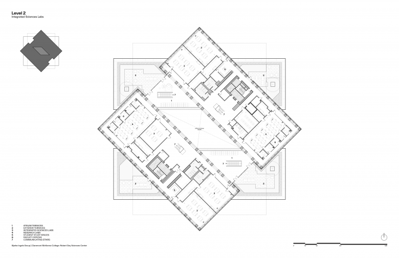
The building's structure is designed as a stack of two volumes, with each pair rotated 45 degrees from the floor below. The voids of the rotated blocks create the full-height atrium at the heart of the building, which provides direct views into classrooms and research spaces from all levels. The open spaces within the atrium invite collaboration, embodying the center's architectural and educational approach. The facade incorporates board-formed panels of glass fiber reinforced concrete, which create a wood-like texture while providing the durability and fire resistance required for a modern laboratory. The roof’s 11,000 sq ft of solar panels provide about 342 megawatt hours of energy production per year.

Inside, each level bridges the level below, supported by triangular steel trusses clad in Douglas fir. The texture, rhythm, and geometry of the trusses carry through to the exterior, creating a seamless transition from inside to outside. The atrium features a large staircase meant for socializing and relaxing that connects the first two floors and a café, creating a lively hub in the center of the building.

Suspended 30 ft in the air, Magnetic Field by Damien Ortega - an intricate sculpture of Earth’s magnetosphere - floats in orbit, composed of 18 metal rings and 1,476 vibrant glass spheres.

The ground floor includes the McElwee Forum, a large seminar space, and imaging suites, while classrooms, research spaces, dry and wet labs, the Quantum Library, and a maker’s space are located on the upper floors. Classrooms are organized around the perimeter of the building, offering picturesque views while keeping them separate from the atrium and social spaces below.

Throughout the building, warm wood cladding and concrete floors are accented with the school's signature colors of red and gold. The BIG-designed interiors are designed to accommodate future scientific innovation, incorporating elements such as reconfigurable classrooms and modular seating.

Eight outdoor rooftop terraces located on the corner perimeters of each ‘bar’ offer sweeping 360-degree views of the mountains to the north, the campus to the west, and the sports bowl to the east. These multifunctional spaces, landscaped with native flora, are designed to be used as outdoor classrooms, study areas, or places to meet. The Robert Day Sciences Center is aiming for LEED Gold.

As day turns to night, the Robert Day Sciences Center continues to serve as a beacon for the confluence of scientific ideas, research, and innovation. Standing illuminated against the backdrop of the San Gabriel Mountains, the center not only anchors CMC’s eastern gateway, but transforms the surrounding campus into a vibrant, inspiring place of discovery.

Photo © Laurian Ghinitoiu
Photo © Laurian Ghinitoiu
Photo © Laurian Ghinitoiu
Photo © Laurian Ghinitoiu
Photo © Laurian Ghinitoiu
Photo © Laurian Ghinitoiu
Photo © Laurian Ghinitoiu
Photo © Laurian Ghinitoiu
Photo © Laurian Ghinitoiu
Photo © Laurian Ghinitoiu
Photo © Laurian Ghinitoiu
Photo © Laurian Ghinitoiu
Photo © Laurian Ghinitoiu
Photo © Laurian Ghinitoiu
Photo © Laurian Ghinitoiu
Photo © Laurian Ghinitoiu
Drawing © BIG
Drawing © BIG
Drawing © BIG
Drawing © BIG
Drawing © BIG
Drawing © BIG
Drawing © BIG
Drawing © BIG
Drawing © BIG
Drawing © BIG
Drawing © BIG
Drawing © BIG
Year
2025
Project Status
Built
Client
Claremont McKenna College
Team
Bjarke Ingels (Creative Director), Leon Rost (Partner-in-Charge), Aran Coakley (Project Manager), Amir Mikhaeil (Technical Lead), Lorenz Krisai (Project Leader), Abigail Meyer, Ahmad Tabbakh, Alan Maedo, Ana Luisa Pedreira, Beat Schenk, Bernardo Schuhmacher, Bianca Blanari, Casey Tucker, David Holbrook, David Iseri, Dylan Hames, Gus Steyer, Hector Romero, Jan Leenknegt, Janie Louise Green, Joe Veliz, Kam Chi Cheng, Minjung Ku, Neha Sadruddin, Pooya AleDavood, Richard Cagasca, Ryan Duval, Seung Ho Shin, Sue Biolsi, Terrence Chew, Thomas Guerra, Thomas McMurtrie, Tracy Sodder, Vi Madrazo, Won Ryu, Yanan Ding, Yasamin Mayyas, Yen-Jung Alex Wu, Yiling Emily Chen
Design Architect and Architect of Record
BIG
Collaborators
Saiful Bouquet, Acco Engineered Systems, Atlas Civil Design, MRY, Rosendin Electric, WSP USA, Jacobs, ARUP, KGM Architectural Lighting, Heintges, KOA, EWCG, KPRS, Herrick, Hortus Environmental Design, IDS Real Estate Group, Kleinfelder, Salam

Other Projects by BIG – Bjarke Ingels Group 

Suzhou Museum of Contemporary Art
Suzhou, China
Hopkins Student Center
Baltimore, USA
Marsk Tower
Hjemsted, Denmark
Isenberg School of Management Business Innovation Hub
Amherst, USA
79&Park
Stockholm, Sweden