O'Porto Blood Bank
The Oporto Blood Bank is built to support all activities of regional blood collection and analysis as well as its partition in 3 components (erythrocytes, plasma and platelets). These components are later to be distributed to hospitals and pharmaceutical industries.
This typology is new and hardly tested. It has a great complexity due to permanent risk of blood contamination. Continuous scientific and technological developments force permanent alterations. It is therefore a building with an unstable interior, wich will undergo frequent metamorphosis throughout its life.
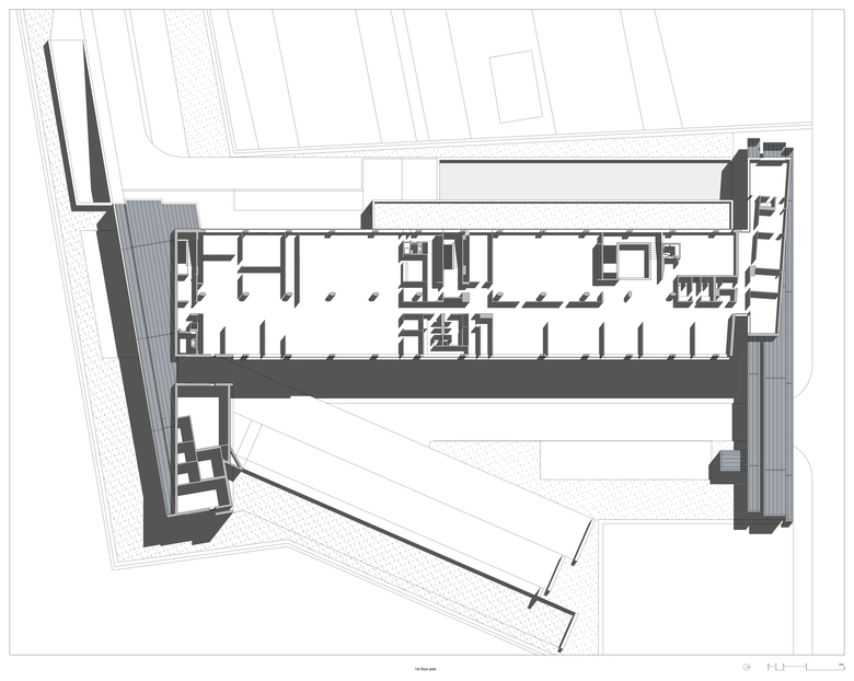
The building program is a linear sequential process (of blood disassembly). It suggests to be more adequate a low and fluid construction rather than a high building, as pointed out by the neighboring housing buildings (5 and 6 levels).
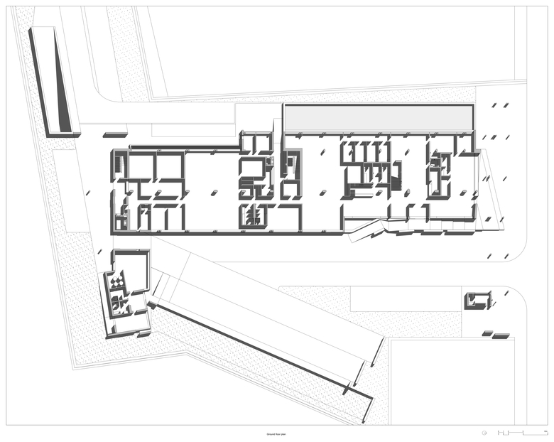
The building is located on a detached plot from de old Covelo Farm. It is an irregular polygon in the heart of a city block, communicating with the street in two different roads (Bolama str. and Visconde de Setúbal str.). The environment is chaotic, built from backyards of the nearly 20 surrounding plots.
The building-as-line runs through the polygon´s different directions searching its geometry. Along its apparent motion, it comes to stability as different segments of variable conditions: thick and sitting on the ground, floating and thin. The extremities touch the streets gently: the building is lifted on Bolama str. announcing the main (public) entrance’s obvious permeability, peeking over the Covelo Park wall across the street; on the opposite end (Visc. Setubal str.) it becomes a technical arch (service entrance) cutting through the renovated granite wall of the old farm.
The building varies between a dominating systematic matrix of a technological nature and sparse subjectivities, as spontaneous reactions to the site.
In its construction the Blood Bank is layered in different raw materials: local granite touching the ground, galvanized steel for the skin, industrial glass for the windows, roof zinc and plywood.
There is no fixed relationship between the content and the container: on the exterior the vertical variation of the window mullions reveals its autonomy from a particular interior layout. Inside materials are always the same, to promote easiness for layout alterations.
Natural light is homogeneous and filtered (as required for labs), through strips of industrial glass (murolux) that capture and spreads sunlight from east and west.
Inside the plot, the views towards the surroundings are cutout through long and narrow windows, transforming the chaotic environment into abstract views out of context.
The stone garden (granite block and gravel and asphalt) is separated from the perimeter of the plot, creating a gap of romantic decay for climber plants.
Overlaying the gray background, the new flora (trees, bushes and climbers) will be purple in the fall, in affinity with the programmatic universe of the building.
- Year
- 2004





