Tea House in Hutong
Tea House in Hutong
Location: East District, Beijing, China
Area: 450 sqm
Project type: Tea House
Design time: 2013.06—2014.03
Construction time:2014.03—2015.01
Design Team:Han Wenqiang , Cong Xiao, Zhao Yang
Design company: ARCHSTUDIO (www.archstudio.cn)
Photographer: Wang Ning
Author: Han Wenqiang
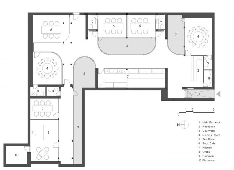
Project Background: Located in Beijing traditional Hutong district, the project’s structure space is an “L” shaped neighbourhood, 450 square metres large. Currently, the space has five old traditional houses and temporary corroded steel houses. The building, which originally hosted company business meetings before going dormant due to poor management will be transformed to a tea café. The tea café will be an ample place for people to read while enjoying their tea time. Additionally, the café will also serve individual dining guests.
Design Concept:
1.Repair old. The project design begins by analyzing the old building's previous data. From the structure of the wood and the size of the grey bricks, we could tell that the relatively old north wing predates the Qing Dynasty. From the already decaying wood structure on the east and west houses, we deduce that the houses ought to be remodelled from the 70s and 80s. Additionally, judging by the wood structure on the building’s south side, you cannot deny the fact that it needs repair. The repair design shall be selective because it will have to factor in the building's age, financial and historical value. Repair in the room in the north wing shall be light, repairing only the parts with serious damage by replacing bricks. Repair in the north room shall be controlled to ensure it doesn't compromise the room's historical appearance. Repair in the south wing shall be aimed at giving the room a basic style through a partial renovation of the roof and wall. After the East and West wing have been demolished, they will be rebuilt into a wood structure with a pitched roof.
2.Implant new. The new environment demands comfort requirements that the previous architecture cannot sustain. For the building to be temperature resistant as required, it will have to be completely closed. Consequently, I have streamlined the visualized structure of the building, with a flat “curvy corridor” that creates a smooth transition from the past to the present. The gallery of the traditional architecture takes a half inside, half outside form, scattered high and low, significantly increasing the beauty of the garden. As depicted in the gallery, from the outside to the extension of the old building shall have a rigid, narrow impression. On the gallery, the white, transparent white space signifies ages of time. The vicissitudes of the life mix and the dark aged architectural pattern bring forth a temperament contrast between the modern and the past while creating a mutual dialogue between the past and future. I also discovered that divided like courtyards into three random arcs, the winding corridor of the original courtyard creates three tea houses with independent sceneries, forming a transition from public to private. The result of the controlled repair will be verandas' glass curtain; wall images and ground-curved screens suspended in the air; and a bamboo forest scenery. Additionally, the steel structure beam column that replaces the decayed wood in the old building brings forth an overlapping series of old and new images, making the new and old grow together.
Significance of the project: The old city is not only historically rich but also has a complex reality. While historical value only sustains the city's value by income through exploration, the unlimited usage of the facility transforms the city into an art pattern. The transformation leaves the residents of the old city with the responsibility of maintaining the balance between the historical and art values. The richness of the environments solemnly depends on how flexible the residents are able to balance the two values. The new life and format can be seen as a catalyst to use history to enhance the usage of the facility.
- Year
- 2015
- Project Status
- Built

























