Mixed House by ARCHSTUDIO | Transformation of a Rural Residence in the Suburb of Beijing
Project name: Mixed House
Location: Shixiao Road, Tongzhou District, Beijing
Design firm: ARCHSTUDIO (www.archstudio.cn)
Chief designers: Han Wenqiang, Li Xiaoming
Participating designers: Guo Jiangang, Meng Gangyu (intern)
Structural consulting: Beijing Xinnan Senmu Structural Engineering Co., Ltd.
MEP consulting: Zheng Baowei, Li Dongjie, Zhang Yingnan
Landscape consulting: Wild Botanical Lab
Construction: Beijing Xinnan Senmu Structural Engineering Co., Ltd.
Plot area: 576 sqm
Gross floor area: 373 sqm
Building height: 5m
Design phase: Oct. 2020 - Apr. 2021
Construction phase: Apr. 2021 - Apr. 2022
Main materials: plywood, brick, laminated bamboo panel
Photography: Jin Weiqi
Courtyard house and village
The project is located in an ordinary village on the outskirts of Beijing, a typical plain-based northern Chinese village mainly composed of one- and two- storey courtyard houses. Most houses in the village face south, and feature red bricks and tiles. Besides, there are also various added constructions built independently by local villagers for meeting their changing living needs, such as shanties with colored-steel roof or glass roof, which blend with the natural fabrics of the village.
The project is the transformation of a courtyard house in the village. The client, who currently lives in the downtown area, hoped to create a family vacation home and a venue for gathering with friends. As approaching this project, ARCHSTUDIO intended to present an architectural status that mixes the old and new, and to build a connection between the project and the built landscape of the village. The goal was to let the renovated architecture integrate into the village with a low-profile gesture, and meanwhile to create a rich and natural small world inside the courtyard house.
Old house and new wooden construction
Mix of architectural forms
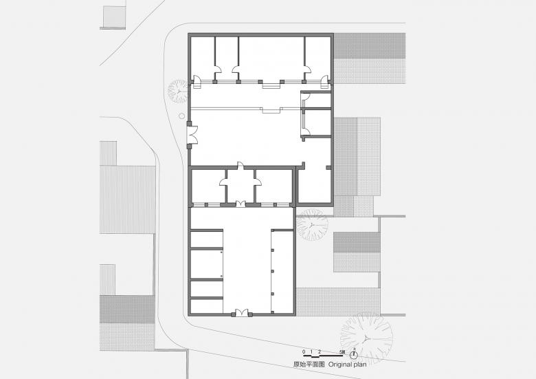
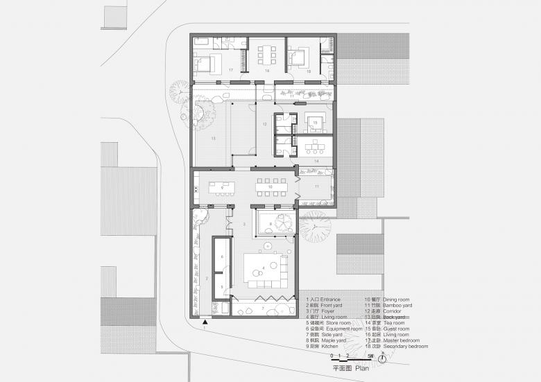
The original architecture is a courtyard compound, consisting of two courtyards, two pitched-tile-roof buildings and several flat-roof volumes. After site investigation, the design team decided to retain and properly transform the north building, which were frequently used and were in good structural condition; to renovate and preserve the south building, which had old structures with historical value; and to dismantle other auxiliary volumes built for temporary use.
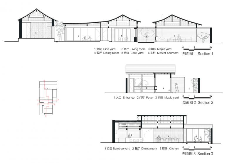
The new addition is an undulating wooden construction, which replaces the old rooms at the middle of the site and extends to north and south sides to create spaces for daily life use, hence shaping a new pattern for the courtyard compound. The new wooden volume undulates in line with the old roofs, and forms two continuous roof ridges, under which are major public living spaces including living room, dining room and kitchen. In addition, two flat-roof building blocks are extended under the roof of the wooden construction, accommodating ancillary functions including two bedrooms, garage and bathroom. For the old building on the north side, the design team exposed its roof structures, and set two bedrooms and a living room in its interior space. The insertion of the new wooden construction strengthens the undulating layering of the roofs, and creates a dialogue between the old and new building volumes.
Courtyard and interior
Mix of behaviors
The original spatial pattern featuring one front yard and one back yard are reorganized, to form six yards with different scales, landscapes and functions. The front yard is set at the southwest core of the site. Opening the metal gate, a bamboo path leads the occupants to the building entrance. Pushing the door and entering the foyer, a courtyard with a maple tree comes into view. The maple tree displays the colors of nature in different seasons, and becomes a highlighted view between the living room and the dining room. Space set aside between the living room and the south enclosure wall forms a side yard, where trees and stones are set. In sunny days, the folding doors of the living room can be completely opened, to extend the yard into the interior.
Further moving towards the north, the occupants will reach the renovated old building. Here, the kitchen and the dining room unfold horizontally, and the old and new roof structures dialogue with each other. Between the dining room and the walls of a neighbor's house is a bamboo yard, which offers an experience of eating and drinking in a bamboo grove.
After passing through the dining room, the back yard is reached. This yard is mainly for outdoor activities, and is connected with a semi-outdoor veranda. Planted with a big tree, it provides a pleasing place for leisure and chatting.
The space at the back is the bedroom area. The north building and the wooden construction are connected by a glass corridor, which naturally forms a narrow yard. The three bedrooms provide a direct view to the outdoor landscape, satisfy daylighting and ventilation needs, and meanwhile avoid obstructed sight lines. The organization of various yards brings natural vitality into every corner of the interior space.
Structures and materials
Mix of the old and the new
The newly built wooden construction adopts cedar plywood as main material and applies traditional beam-lifted frames, to echo the features of traditional northern Chinese houses. By fully utilizing plywood, a low-carbon and renewable natural building material, the newly inserted wooden construction continues the existing old house's wooden frame with new structural expressions, hence creating a dialogue between the old and the new. Moreover, the undulating new roof is constructed with beams and columns featuring minimized cross sections and maximized spans, to ensure a reasonable structure and control costs.
Doors and windows employ fixed insulating glass and openable frames made of laminated bamboo panels. The solid openable window frames help improve ventilation, and the fixed glass panes provide complete outdoor views. Besides, all indoor fixed furniture pieces are customized with the use of laminated bamboo panels. Various timer materials, including plywood, laminated bamboo and the existing wooden beams, form a fusion of the old and the new.
The newly built enclosure walls are completely made of red and gray old bricks recycled locally, which realizes the reuse of waste materials. When renovating the existing buildings, the design team decided to remove and polish the white ceramic tiles on the exterior of the preserved north building to expose its red-brick walls. As demolishing parts of the south building's roof, the designers found that its original structures were seriously damaged and the walls under it were at the risk of collapse. Therefore, they took the roof apart, and replaced some old wooden components with new ones. Meanwhile, the walls were rebuilt with old gray bricks in consistent with their original forms.
The ground is paved with new red bricks, which perform better in resisting water and dust. Rooftops are clad in red vermiculite-coated metal tiles, which are lightweight, cost-saving and have a long life span. The red surfaces of those metal tiles harmonize with the red roofing tiles commonly seem in the village.
By creating yards, updating structures and reusing materials, the design team tried to invent a sustainable design strategy for the evolution from the old to the new. Besides, they struck a balance in maintaining characteristics, coordinating styles and controlling costs to create new possibilities for the renewal of rural architecture.
- Year
- 2022
- Project Status
- Built
























































