Mirror Garden
Mirror Garden
ARCHSTUDIO transformed a small individual building situated in an old hutong neighborhood of Beijing. Due to historic reasons, there are many individual buildings in Beijing's old districts, apart from traditional courtyard dwellings (Siheyuan) and big messy courtyards (Dazayuan). The design team replaced the original flat roof with a pitched structure, and reduced the architectural volume to integrate it into the surrounding built environment. Mainly functioning as a multi-brand boutique, the building can accommodate a variety of activities such as exhibitions, products selling and dining, and is also available for activity venue rental.
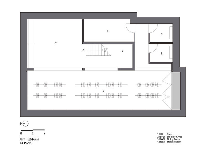
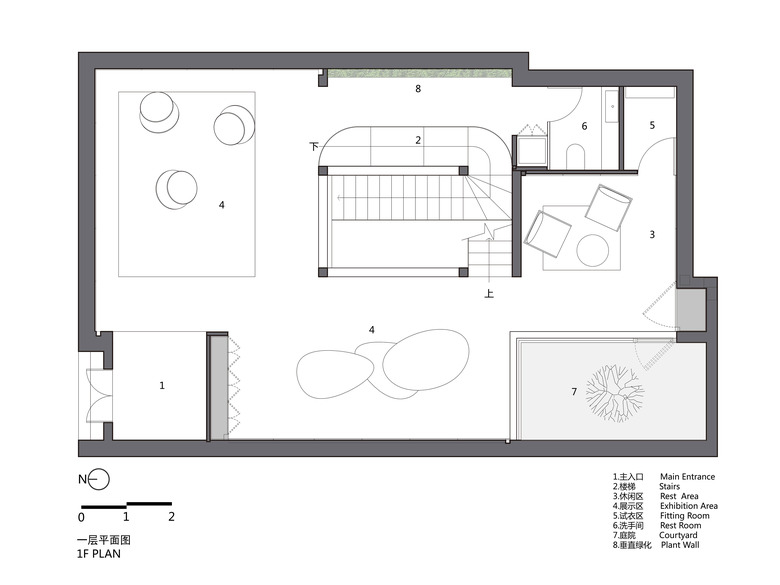
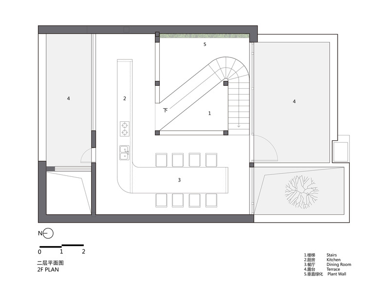
The main concept of the design is to build indoor-outdoor connections through mirrors and yards, so as to create infinite field of vision in the limited space and turn the architecture into a "garden" featuring diversified scenes and experiences. Three yards connect the interior spaces, and bring in ample sunshine and greenery. Walking through a daylight-filled yard, it arrives at the first floor, where furniture and some other products are displayed and sold. A large area of the space is finished with mirrors, which produce multiple reflections of people, objects, furniture and plants and generate an interactive relationship between the "real" and the "reflected". The staircase, complemented by a 6-meter-high vertical plant wall, zigzag upwards to the second floor, the attic. The kitchen and the dining table are constructed with terrazzo, together forming a "L" shape, which enables the close interaction between the chef and dinners. There are two terraces respectively situated on the north and south side of 2F, allowing indoor activities to be extended outdoors freely. The basement was repurposed into an area for displaying and selling garment, shoes and hats. The gleaming floor serves as the display stand for hats, shoes and other items, and also brightens the underground space. Well-selected clothes are hung in a mirror-filled space, which produces playful interaction between people and objects. The design team adopted an intelligent lighting system in the entire space, and embedded variable lights into mirror-clad spaces, with a view to meeting the needs for different activities and settings.
Project name: Mirror Garden
Design firm: ARCHSTUDIO(www.archstudio.cn)
Chief designers: Han Wenqiang, Li Xiaoming
Design team: Wang Tonghui, Huang Tao, Song Huizhong ,Wen Chenhan
Construction phase: August 2018 — April 2019
Location: Dongsi Subdistrict, Beijing, China
Area: 283 m2
Main materials: mirrors, steel panels, terrazzo
Photography: Wang Ning, Hong Qiang
- Year
- 2019
- Project Status
- Built

























