Forum Riethof
Die Siedlung Riethof soll einen neuen Gemeinschaftsraum, ein Forum, als Ort des Zusammenkommens für rund 240 Wohnungen erhalten.
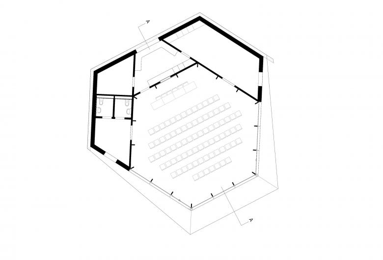
Ein sechseckiger Pavillon wird nördlich zwischen zwei Hochhäuser gesetzt und grenzt an den heutigen Spielplatz an. Der höchste Punkt des auf allen Seiten gleichmässig geneigten Daches liegt zentrisch über dem gleichschenkligen, sechseckigen Hauptraum – dem eigentlichen Forum. Ein Oberlicht und die sichtbare Holzkonstruktion zeichnen den Raum aus.
Mit dem Vordach und der konsequenten, raumhohen Fensterverglasung gegen Süden heisst der Pavillon alle herzlich willkommen und versinnbildlicht seine Funktion als Ort der Gemeinschaft. Im Norden werden die Nebenräume wie Eingang, WC-Anlagen, Küche und Lagerräume als zusätzliche Raumschicht angehängt, die Dachneigung wird weitergezogen und verleiht dem Gebäude ein leicht asymmetrisches Aussehen.
Für die Dach- und Fassadenverkleidung ist ein einziges Material vorgesehen: Die Gebäudehülle ist mit einer Stehfalz-Deckung in Blech (behandelt, farbig) angedacht. Der Pavillon besitzt eine kompakte, effiziente Form, die eine geringe Fassadenabwicklung aufweist.
- Year
- 2018
- Client
- Asig Wohngenossenschaft Zürich
- Kostenplanung
- MMT Bauleiter und Architekten, Zürich






