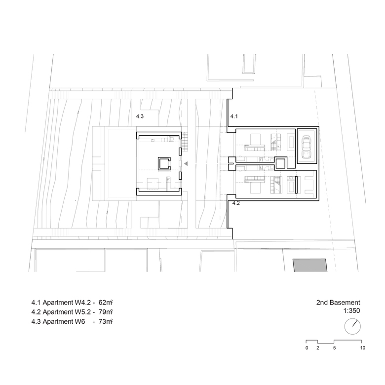
Mehrfamilienhaus Zollikon
Zürich, Schweiz
- Architekten
- gus wüstemann architects AG
- Jahr
- 2017
Dazugehörige Projekte
Magazin
-
-
-
-
Un despatx madrileny signa un visionari catalitzador urbà en West Palm Beach
Andrea Pala | 29.11.2018 -
L'arquitectura de Francis Keré en escena en el Museu ICO de Madrid
Andrea Pala | 28.10.2018

















