Gavà's Unió de Cooperadors Rehabilitation (J. L. Sert and J. Torres Clavé, 1936)
Gavà
The Unió de Cooperadors de Gavà is an emblematic building, witness of a key historical moment, which arose in 1934 from an initiative of workshop and industrial workers who joined the cooperative movement and had the vision to commission the building to the architects Josep Lluis Sert and Josep Torres Clavé, members of GATCPAC, who at that time were already prominent and whose works have endured over time.
When designing this building, located on the Rambla de Gavà, Sert started from the function for which it was conceived; a space that inside should promote synergies and collaboration, and open to the outside to be a catalyst for the town. The result is a work that applies the principles of rationalist architecture.
The human dimensions of the project are a clear influence of the Bauhaus School.
The current project responds to the need to rehabilitate an emblematic building that was completed in 1936 and soon suffered the consequences of the Civil War, losing its original use. The objective of the rehabilitation is to recover the function for which it was conceived, adapting it to the needs and present context.
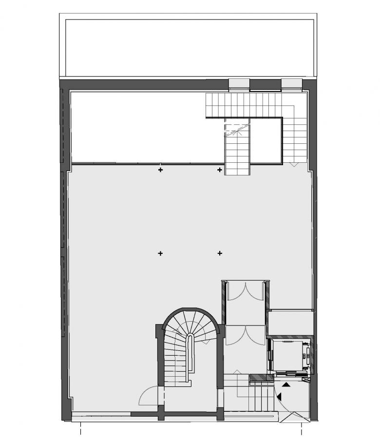
It is a building between party walls with three floors where originally, the basement was used for storage and services for members. The first floor was used for sales and administration, while the upper floor was a social space with a cafeteria.
Fortunately, some of the most significant and representative architectural elements of GATCPAC's architecture have been preserved from this period, despite the multiple interventions the building has undergone. Part of the façade was preserved, as well as the free plan structure with metal pillars, floor slabs of metal beams and ceramic vaulting and the characteristic circular scale of J. Ll. Sert's architecture.
The rehabilitation has sought to return the building to its original state, providing it with the features of a building for contemporary public use. To this end, the superfluous elements that had been added to the original work, which Sert endowed with an architectural language that pursued the essence, sobriety and economy based on rationality, have been eliminated.
Priority has been given to the recovery of the main façade, with its characteristic chromatism, and the conservation and enhancement of the original structural elements that were preserved and finishes such as the staircase, railings and woodwork.
The adaptation to current regulations includes the installation of an elevator in a strategic point of the building that, with the least impact, provides it with the required accessibility. Likewise, the installations have been located in party walls and floor slabs to preserve the building's open floor plan.
And taking advantage of the multiple transformations that the rear service bay underwent, it has been emptied to create a triple space and a new staircase for communication and vertical connection of all floors, facilitating its adaptation to a new use.
- Architects
- Meritxell Inaraja i Genís
- Any
- 2021
- Client
- AMB-Àrea Metropolitana de Barcelona
- Equip
- Architecture Partnership: Laura Bigas - Amàlia Casals - Ester Serradell (arquitecture team), Structure Partnership: Eskubi-Turró arquitectes SLP, Facilities Partnership: AIA Instal.lacions Arquitectòniques SL, Others: COTCA SA (structural studies and pathologies) - Patrimoni 2.0 Consultors (chromatic studies), Economy Partnership: Joan Antoni Rodón Bellalta (Technical Architect), Technical Architect: Mònica Mauricio (technical architecta AMB), Construction Company: REHAC SA, Safetey and Health Coordination: Atenea Seguridad y Medio Ambiente SAU
Projectes relacionats
Revista
-
-
-
-
Un despatx madrileny signa un visionari catalitzador urbà en West Palm Beach
Andrea Pala | 29.11.2018 -
L'arquitectura de Francis Keré en escena en el Museu ICO de Madrid
Andrea Pala | 28.10.2018







































