Biblioteca "Can Manyer"
Vilassar de Dalt
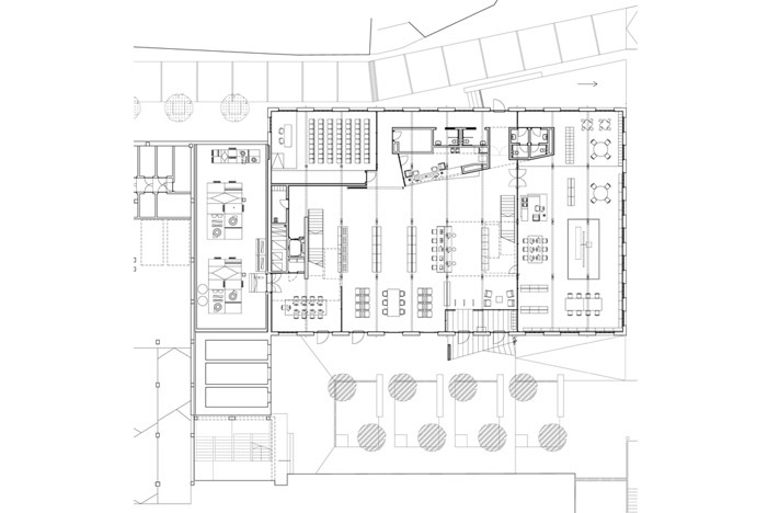
La Biblioteca Municipal de Vilassar de Dalt es situa a la nau principal de Can Manyer, un complex tèxtil del segle XIX que, des dels anys setanta del darrer segle, anava fent cada vegada més palesa la seva obsolescència industrial. La rehabilitació d’aquesta meravellosa nau és un exercici de recuperació del patrimoni industrial de Vilassar de Dalt i, a la vegada, és un joc d’arquitectura racional, clara i diàfana realitzat a partir de la funcionalitat de la biblioteca que dona nova vida als dos grans espais de la vella nau tèxtil. La planta inferior, amb els rengles de pilars de foneria i les voltes a la catalana, és un espai força alt i agradable del qual arrenquen dues escales obertes que condueixen a la planta superior, un altre espai, encara més alt, que mostra, filiformes, les esveltes encavallades de suport del doble vessant de la coberta: És un edifici plàcid i serè, un autèntic temple de la industria tèxtil del nostre país. Els serveis de la biblioteca que han de quedar tancats es resolen amb unes construccions de fusta a l’interior dels dos grans espais sense arribar a sostre, coberts per si mateixos com uns quioscs lleugers. El respecte general a l’espai i al seu origen industrial es respira en tota la Biblioteca.
- Architects
- DFT arquitectes
- Any
- 2002
Projectes relacionats
Revista
-
-
-
-
Un despatx madrileny signa un visionari catalitzador urbà en West Palm Beach
Andrea Pala | 29.11.2018 -
L'arquitectura de Francis Keré en escena en el Museu ICO de Madrid
Andrea Pala | 28.10.2018












