La Borda aposta per un nou model d'habitatge
Des de fa uns anys diferents associacions de Barcelona s'estan acostant a una nova forma de fer habitatge: la covivienda. Aquest model permet a una comunitat de persones viure en un immoble sense ser propietaris o arrendataris.
La Broda és un col·lectiu format per més de cinquanta veïns del barri barceloní La Bordeta (districte Sants-Montjuïc), a la zona sud de la ciutat. Aquests es van ajuntar amb l'objectiu de perseguir el dret a l'habitatge i, amb tal propòsit, van crear en 2012 una cooperativa amb la finalitat de construir un edifici residencial en cessió d'ús. Segons el seu manifest, el seu projecte vol fer front a “la necessitat d'accedir a un habitatge digne, social, assequible i ambientalment sostenible amb la voluntat de fomentar noves formes de convivència i de generar comunitat a través de la interrelació entre veïns i veïnes”.
La Broda forma part del projecte Can Batlló: plataforma veïnal que va néixer en 2011 com a resultat de l'ocupació de l'homònim recinte industrial de finals del segle XIX. Amb la seva ocupació els veïns de la Bordeta reivindicaven la transformació de l'antic polígon a equipament social per al barri, ja prevista en el Pla General Metropolità del 1976. No és casualitat que la Broda hagi triat aquest lloc per donar vida a aquest nou model de fer habitatges, considerant també el fet que el districte de Sants pot ser considerat l'epicentre del cooperativisme a la ciutat de Barcelona.
La construcció de l'edifici de la Broda compta amb la participació d'unes quantes cooperatives que gestionen de forma activa i democràtica totes les fases del projecte empresarial. Entre aquestes, és important mencionar el col·lectiu de LaCol, responsable del desenvolupament del projecte arquitectònic dels habitatges.
L'aspecte innovador del projecte està en el model de cessió d'ús, que es basa en una propietat col·lectiva on els habitatges no es compren ni es lloguen. Aquest model ja s'està aplicant en països com Dinamarca (model Andel) i Uruguai (model FUCVAM) i preveu una doble cessió: del sòl i del pis. En aquest cas l'Ajuntament de Barcelona cedeix a la cooperativa el sòl públic, destinat a la construcció d'Habitatge protegit (VPO), amb un dret de superfície de 75 anys, a canvi del pagament d'un cànon anual. Els socis-habitants han de complir els criteris de VPO, i assumeixen el cost de la construcció de l'edifici o de la seva rehabilitació a través d'una aportació inicial de 15000 euros i d'un crèdit, que amortitzaran pagant una quota mensual assequible a les seves possibilitats. A qualsevol moment els socis poden deixar la cooperativa i recuperar la seva inversió inicial.
El model de cessió d'ús permet fer front a possibles especulacions i canvia radicalment la idea generalitzada d'habitatge com bé de consum. Representa una alternativa en l'àmbit de l'habitatge públic i una nova forma d'accés i gestió per a les persones amb rendes baixes.
El projecte de l'edifici de la Broda ha estat encarregat a la cooperativa d'arquitectes de LaCol, instal·lada a Sants. Aquest col·lectiu desenvolupa els seus projectes plantejant una nova manera de pensar i fer arquitectura en favor de la transformació social i de la participació activa dels ciutadans i ciutadanes. En el cas dels habitatges de la Broda la autopromoció i la posterior gestió comunitària comporten a la participació activa dels futurs usuaris en el procés constructiu, generant un projecte que respongui a les seves necessitats concretes. L'equip tècnic ha treballat a estricte contacte amb els habitants suportant i recollint les propostes sobre el programa de l'edifici, les estratègies ambientals, les tipologies d'habitatges i els espais de servei necessitats. Finalment, el projecte executiu reflecteix la construcció d'una comunitat formada per diferents i múltiples estructures familiars.
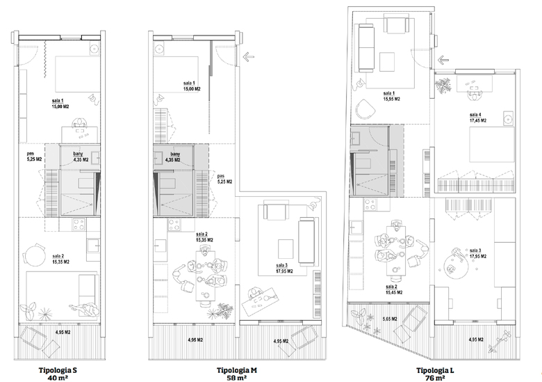
El programa de l'edifici preveu 28 habitatges de diferents tipologies i espais comuns, que s'articulen al voltant d'un pati central, que recorda les corralas, tipologia d'habitatge social i popular. Aquests espais estan en la planta baixa i són: una cuina-menjador, un espai de treball compartit, una bugaderia, una sala polivalent, un espai per convidats, una sala de salut i cures i un aparcament per a bicicletes. A més es troben espais exteriors i semi-exteriors com el pati, el terrat amb coberta verda, una terrassa amb horts urbans, i trasters col·lectius que es distribueixen en cada planta. Per crear aquests espais col·lectius cada usuari ha cedit uns 10 m2 de la superfície dels seus habitatges; fet que marca una vegada més la implicació de la comunitat d'habitants, on cadascun participa pel ben comú.
Els habitatges es constitueixen partint d'una tipologia basi de 40 m2, a la qual s'afegeix un o dos mòduls per formar habitatges més grans. D'aquesta manera, l'estructura resulta ser bastant flexible, permetent adaptar els habitatges a les necessitats futures dels usuaris. En total hi ha 50 habitants que conformen diferents unitats de convivència: persones soles, parelles amb o sense fills i adults que cohabiten.
En termes de sostenibilitat i qualitat ambiental, els arquitectes de LaCol plantegen un edifici amb el menor impacte ambiental, reduint la demanda energètica, apostant per un disseny bioclimàtic que preveu el màxim aprofitament solar i la ventilació creuada. La fusta és el material triat pels arquitectes, pel seu impacte ambiental mínim, el seu caràcter innovador en la construcció i la rapidesa del muntatge.
El projecte de la Broda no és l'única iniciativa a Barcelona que utilitza el model d'habitatge cooperatiu en cessió d'ús. A la fi de l'any passat la fundació Dinamo va obrir una convocatòria per a un projecte d'habitatge cooperatiu al mateix barri La Bordeta, i es preveu que aquest estiu comencin els treballs per aixecar un nou edifici. També, s'estan duent a terme altres iniciatives similars en altres barris de la ciutat, gràcies al concurs impulsat per l'Ajuntament que destina cinc solars a la construcció de covivenda. En total es construiran 110 habitatges en sòls públics per part de les associacions guanyadores del concurs: La Xarxaire SCCL al barri de la Barceloneta, Llar Jove SCCL en Marina del Prat Vermell, Associació Parkformes en Sarrià, Associació Cohabitatge Cooperatiu a Roquetes, Sostre Cívic SCCL a Poblenou.








