Seniorenwohnhaus St. Josef

Kniebisstraße, 60528 Frankfurt, 德国
© Thomas Ott Fotografie

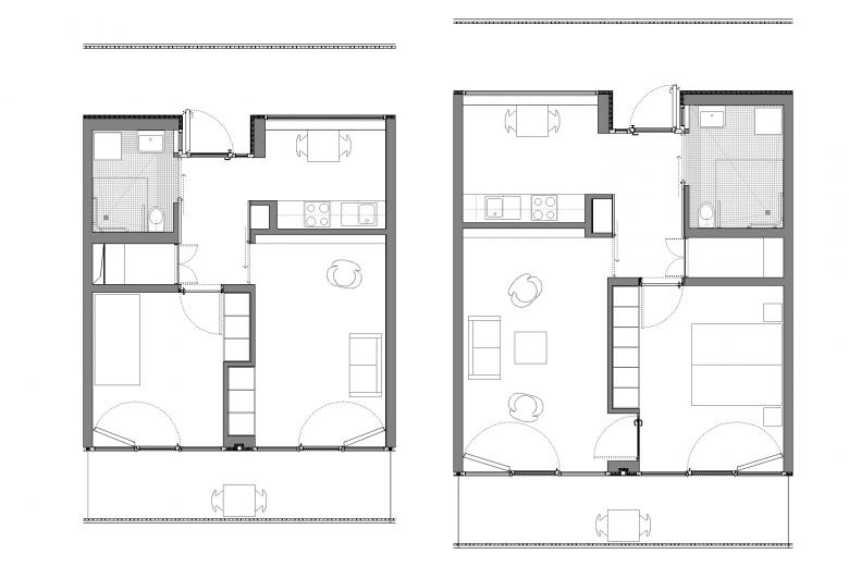
In Würde altern – eine klare aber zurückhaltende Architektur soll die persönliche Entfaltung im Seniorenwohnhaus St. Josef des Caritasverbands Frankfurt ermöglichen. Die Idee des betreuten, aber selbständigen Wohnens in der Gemeinschaft wird durch die Anordnung von insgesamt 35 Wohnungen nach Süd, West und Ost um einen gemeinschaftlichen Innenhof gestärkt. Dieser ist Identifikations- und Kommunikationsraum für die Bewohner der 24 barrierefreien und 10 rollstuhlgerechten Wohnungen sowie der Wohngemeinschaft des dreigeschossigen, U-förmigen Neubaus. Die fertiggestellten Wohnungen konnten zum 01.12.2015 bezogen werden.

© Thomas Ott Fotografie
© Thomas Ott Fotografie
© Thomas Ott Fotografie
© Thomas Ott Fotografie
© Thomas Ott Fotografie
© Thomas Ott Fotografie
© Thomas Ott Fotografie
© Waechter + Waechter Architekten BDA, Darmstadt
© Waechter + Waechter Architekten BDA, Darmstadt
© Waechter + Waechter Architekten BDA, Darmstadt
© Waechter + Waechter Architekten BDA, Darmstadt
© Waechter + Waechter Architekten BDA, Darmstadt
年份
2015
客户
Caritasverband Frankfurt
Mehrfachbeauftragung
2012 - 1. Platz
Winner Architecture Domestic
2016 - ICONIC AWARDS
Auszeichnung
2017 - Vorbildliche Bauten im Land Hessen
Nominierung und Shortlist
2017 - DAM Preis für Architektur in Deutschland

以下出品方的其他项目 Waechter + Waechter Architekten 

Sanierung und Aufstockung Herderschule
Darmstadt, 德国
AFZ Assessment- und Förderzentrum Neuwied
Neuwied-Engers, 德国
AIZ ‐ Akademie der Deutschen Gesellschaft für Internationale Zusammenarbeit (GIZ) am Campus Kottenforst
Bonn, 德国
Internat Berufsbildungswerk Josefsheim
Olsberg, 德国
Haus im Burggarten – Wohnpflegeheim
Breitenbach am Herzberg, 德国