Sanierung und Aufstockung Herderschule

Am Kapellberg 1, 64285 Darmstadt, 德国
照片 © Thilo Ross, Heidelberg

Das neue Kupferdach stellt den würdevollen Abschluss des Baukörpers wieder her, ohne das Vergangene zu zitieren. An den Längsseiten werden die Dachflächen raumhoch aufgefaltet, so dass durch die schaufensterartig verglasten Öffnungen die Räume einen atemberaubenden Blick auf Bessungen und die angrenzende Petrusgemeinde bieten. Die neue Dachmodulation mit den Öffnungen interpretiert unter Berücksichtigung der engen Vorgaben des Bebauungsplans die kriegsbedingt zerstörte ornamentale Giebelseite neu.

照片 © Thilo Ross, Heidelberg
照片 © Thilo Ross, Heidelberg
照片 © Thilo Ross, Heidelberg
照片 © Thilo Ross, Heidelberg
照片 © Thilo Ross, Heidelberg
照片 © Thilo Ross, Heidelberg
照片 © Thilo Ross, Heidelberg
照片 © Thilo Ross, Heidelberg
照片 © Thilo Ross, Heidelberg
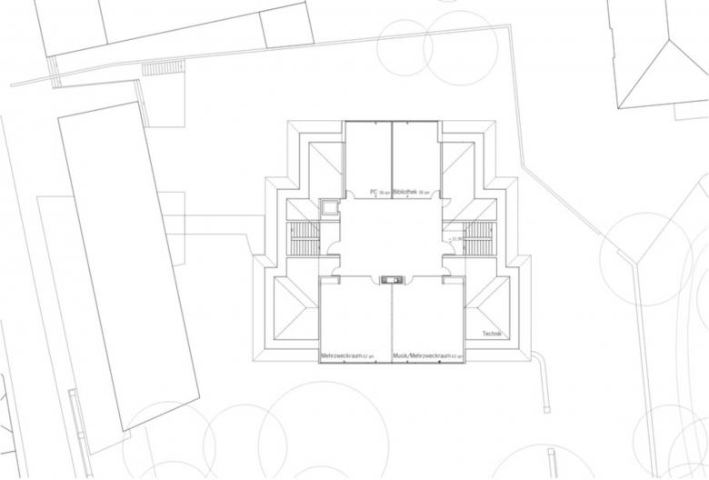
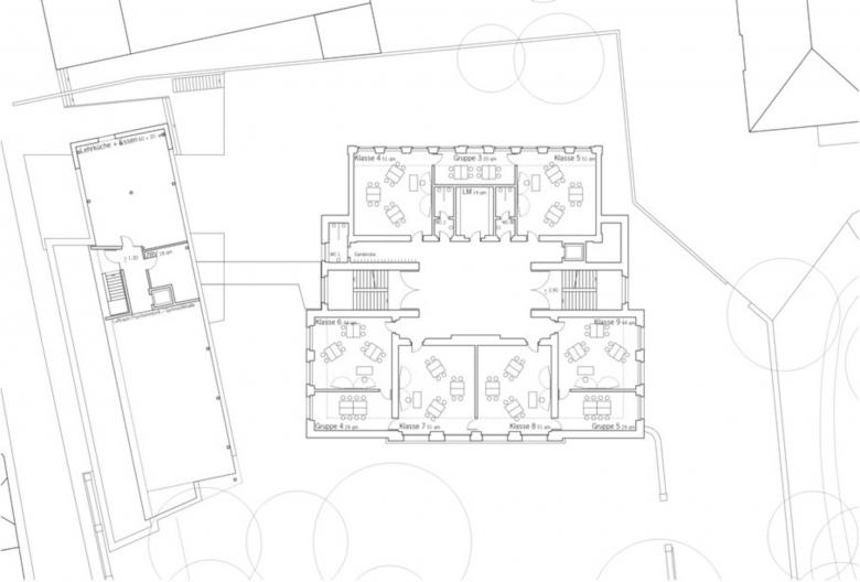
图纸 © Waechter+Waechter Architekten BDA, Darmstadt
照片 © Waechter+Waechter Architekten BDA, Darmstadt
年份
2020
客户
Wissenschaftsstadt Darmstadt

以下出品方的其他项目 Waechter + Waechter Architekten 

AFZ Assessment- und Förderzentrum Neuwied
Neuwied-Engers, 德国
AIZ ‐ Akademie der Deutschen Gesellschaft für Internationale Zusammenarbeit (GIZ) am Campus Kottenforst
Bonn, 德国
Internat Berufsbildungswerk Josefsheim
Olsberg, 德国
Haus im Burggarten – Wohnpflegeheim
Breitenbach am Herzberg, 德国
Schulzentrum Sallerner Berg Regensburg
Regensburg, 德国