Jugendcafé Chillmo
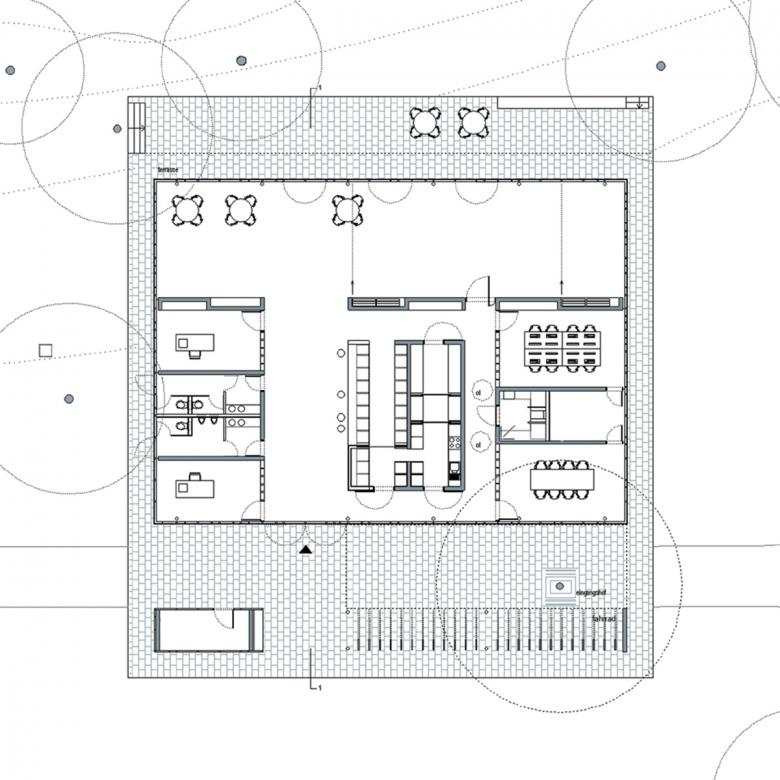
Der Neubau für das Jugendcafe ist als pavillonartiger Baukörper am Eingang zur Brentanoanlage, zum See hin ausgerichtet, konzipiert. Am bestehenden Weg angelagert, greift das quadratische, auskragende Dach als Pergola aufgelöst über den Weg, markiert den Eingang und definiert einen Zwischenraum, der Bestandteil des Parks und zugleich des Jugendcafés wird. Vielfältige Blickbeziehungen sowie die zentrale, kommunikative innere Organisation entsprechen dem inhaltlichen pädagogischen Konzept und erlauben zugleich eine einfache, klare Orientierung.
Bauherr
Stadt Darmstadt, Bund Länder Programm 'Soziale Stadt'
- 年份
- 2005
- Project Status
- 已建造
- 客户
- Stadt Darmstadt
- Auszeichnung
- 2008, BDA Hessen, Joseph-Maria-Olbrich-Plakette
- 1. Preis
- 2008, Landesinitiative Baukultur in Hessen
- Mehrfachbeauftragung
- 2003, 1. Platz












