Betreutes Wohnen am Ostpark
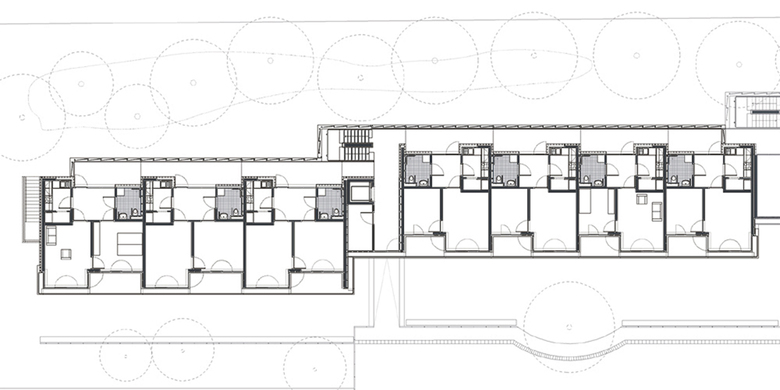
'In Würde alt werden. ... Eine klare, präzise durchdetaillierte Architektur bildet den unaufdringlichen Rahmen für die persönliche Entfaltung. ... Besonders überzeugt die Idee, das Haus entlang der stark befahrenen Straße über den voll verglasten Laubegang so zu erschließen, dass jede Wohneinheit über eine vorgelagerte Zone für das Gespräch außerhalb der eigenen Räume verfügt. Über Haustüren (nicht Wohnungstüren) werden die jeweiligen Wohnungen, die dank der großflächigen Verglasung lichtdurchflutet sind, erschlossen. ... Kurzum: eine vorbildliche, eine beispielhafte Lösung'
Jury Vorbildliche Bauten in Hessen 2005
- 年份
- 2006
- Project Status
- 已建造
- 客户
- Stadt Rüsselsheim
- Auszeichnung
- Vorbildliche Bauten in Hessen 2005
- Anerkennung
- 2007, Brick Award









